Купить офис, г. Минск, ул. Первомайская, 24/2
2 691 840 р.
1 290 р.≈ 460 $ за м²
Продажа
Следить за ценой
- г. Минскул. Первомайская, 24/2
- Первомайская
- На карте
Офис
Тип
2057 м²
Площадь
1 из 1
Этаж
9 минут назадID 4104433
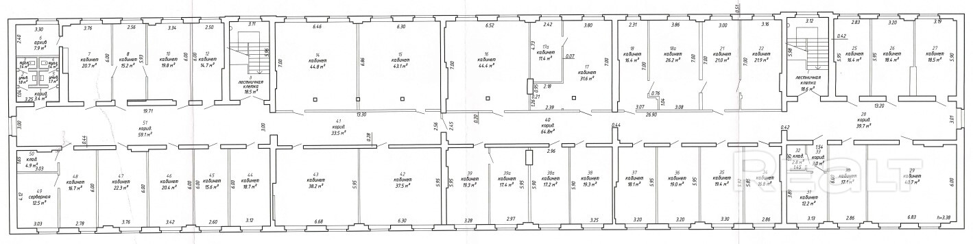
Параметры объекта
- Тип объекта
Офис
- Площадь участка
21 сотка
- Площадь общая
2057 м²
- Этаж / этажность
1 / 1
- Раздельных помещений
50
- Материал стен
Кирпичный
- Высота потолков
2.7 м
- Ремонт
Нормальный
- Отопление
Есть
- Электроснабжение
Есть
- Естественное освещение
Есть
- Вода
Есть
- Санузел
Есть
- Парковка
Есть
- Принадлежность объекта
Частная
- НДС
НДС включен
- Аукцион
Да
Продавец
Игорь
Контактное лицо
Примечание
Админ здание в самом центре (парк Горького) по ОЧЕНЬ ВЫГОДНОЙ ЦЕНЕ. 2-х этажное админ здание 2057,5 кв.м. со складом 74,7 кв.м. Через дорогу от парка Горького в тихом, зеленом дворике, рядом набережная реки Свислочь, проспект Независимости. Транспортная доступность: рядом остановки общественного транспорта, в 10 минутах. Бывшее здание казармы, нарезка на много помещений - если перевести в жилой фонд, окупаемость максимальная.
Местоположение
- Область
- Населенный пункт
- Улица
- Номер дома
24/2
- Район города
- Микрорайон
- Координаты
53.9013, 27.5785
