Купить здание, аг. Гапоновичи, ул. Молодежная, 2 (Крупский р-н, Минская область)
14 207 р.
Продажа
Следить за ценой
Здание
Тип
172.20 м²
Площадь
1 из 1
Этаж
23.01.2026ID 3918909
Описание
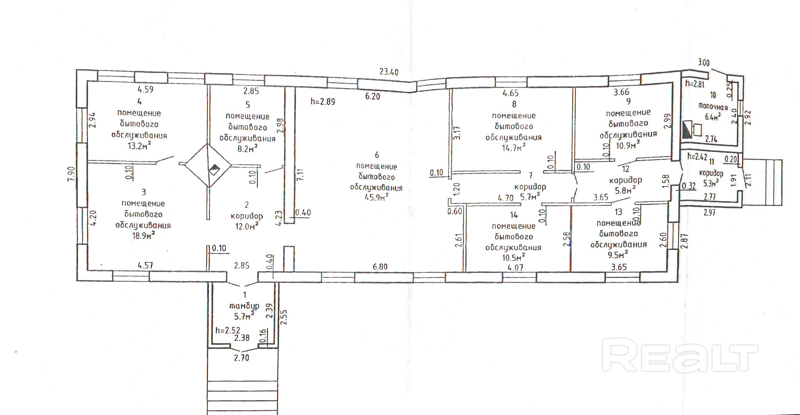
Продаётся здание площадью 172,7 м2 в 7 км от города Крупки и 125 км от Минска.
- Обшито сайдингом.
- Установлены двухкамерные окна ПВХ.
- Оборудовано твердотопливным котлом.
- Крыша в отличном состоянии, здание сухое.
Для уточнения деталей звоните!
Параметры объекта
- Тип объекта
Здание
- Площадь участка
6.76 соток
- Площадь общая
172.20 м²
- Этаж / этажность
1 / 1
- Раздельных помещений
1 - 2
- Материал стен
Кирпичный
- Ремонт
Нормальный
- Естественное освещение
Есть
- Принадлежность объекта
Частная
- Номер договора
130/1 от 21.08.2025
Примечание
Продаётся здание площадью 172,7 м² в 7 км от города Крупки и 125 км от Минска.
Местоположение
- Область
- Район
- Населенный пункт
- Улица
- Номер дома
2
- Сельсовет
Крупский с/с
- Направление
Московское, 122 км от МКАД
- Координаты
54.3627, 29.109
