Продажа 2-х зданий в г. Минске
1 383 270 р.
Тип
Площадь
Описание
Продаются 2 здания:
1)Торгово-административное и 2)Административно-бытовое (многофункциональные).
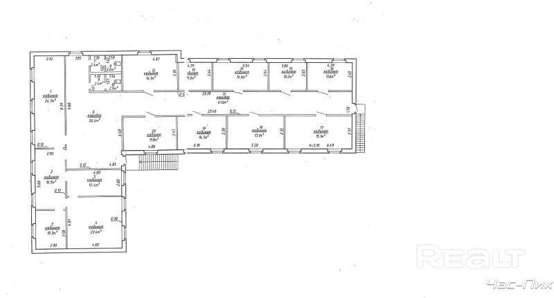
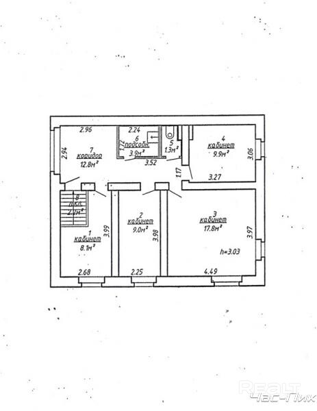
1)Торгово-административное здание 1996 года постройки, 2-х этажное, стены кирпичные, перекрытия железобетонные, перегородки кирпичные. Состоит из: торгового зала -27,3 м кв., складского помещения-33,3 м кв., 4-х кабинетов и подсобного помещения.
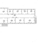
2) Административно-бытовое здание 1996 года постройки, 2-х этажное, стены - кирпич, блок, перегородки - кирпичные, перекрытия - железобетонные плиты. Состоит из: административных кабинетов, 2-х санузлов, коридора, 2-х складских помещений 198,2 м кв. и 118,4м кв. с подсобкой.
К зданиям и складским помещениям удобные транспортные подъезды с двух сторон.
Микрорайон с перспективой развития: строится множество жилых площадей, а также метро: Зеленолужская линия - Парк Дружбы народов, площадь Бангалор, Мележа.
Объекты можно использовать как торгово-административные, также и для сдачи под аренду, как административно-бытовые.
ТОРГ.
Параметры объекта
- Тип объекта
Здание
- Площадь участка
15.5 соток
- Площадь общая
894.90 м²
- Этажность
2
- Год постройки
1996
- Материал стен
Кирпичный
- Ремонт
Хороший
- Отопление
Есть
- Электроснабжение
Есть
- Естественное освещение
Есть
- Вода
Горячая
- Санузел
Есть
- Оборудование
Есть
- Количество телефонов
Больше пяти
- Парковка
Есть
- Принадлежность объекта
Частная
- НДС
НДС не включен
- Расположение
Частный сектор
- Номер договора
62/3 от 03.04.2023
Оснащение
Охрана
Оживленное место
Интернет
Отдельный вход
Час-Пик
Контактное лицо
Примечание
Местоположение
- Область
- Населенный пункт
- Улица
- Номер дома
61
- Район города
- Микрорайон
- Координаты
53.9398, 27.5841
