Административное здание 1535,6 кв.м. ул. Маяковского 129А
3 600 000 р.
Тип
Площадь
Этаж
Описание
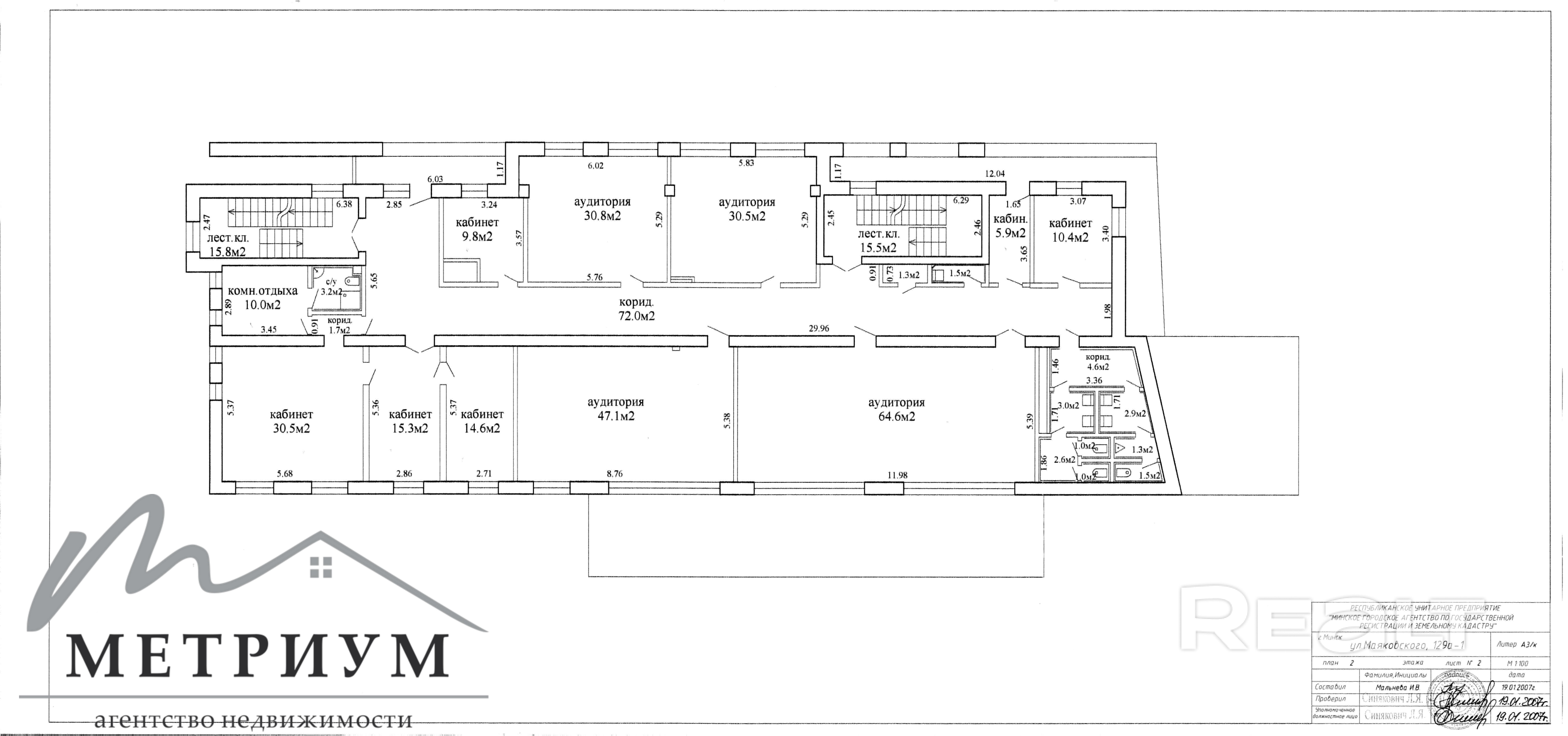
Продажа коммерческого объекта - 3-х этажное административно-учебное здание.
Адрес: г. Минск, ул. Маяковского, 129, Ленинском р-н
Площадь здания: 1535,6м2
97% объекта под арендой
Площадь земельного участка: 0,2579га., назначение – эксплуатация и обслуживание здания специализированного иного назначения, земельный участок в аренде (договор аренды №463 от 28.02.2013г. до 28.02.2052г.), находится в водоохранной зоне водного объекта (код -4,1).
Оснащение помещения:
•Отделка: современная, чистовая.
•Коммуникации: электричество (питание от городского ТП 2420, мощность 49 КВт), отопление (своя котельная), вода, санузлы на каждом этаже.
•Дополнительно: пожарная сигнализация, интернет. На 1-м этаже здания имеется помещение площадью 124,8кв.м.: наименование – кафе, назначение – код 40209 Помещение общественного питания.
•Доступ в здание: 24/7.
•Рядом парковка, и через дорогу «Лошицкий парк».
Финансовые условия:
•Аренда в месяц: 8 долларов за 1 кв.м.
•Окупаемость: примерно 10 лет
Здание идеально подходит для сферы услуг, образовательной деятельности (детский сад, школа), под офисы.
Договор №816 от 23.10.2025
ООО Агентство недвижимости «Метриум»
УНП 193581536
Лицензия № 02240/425, выдана Министерством Юстиции РБ 27.08.2021
Параметры объекта
- Тип объекта
Здание
- Площадь участка
25.79 соток
- Площадь общая
1535.60 м²
- Этаж / этажность
1 / 3
- Год постройки
2004
- Материал стен
Кирпичный
- Ремонт
Хороший
- Отопление
Есть
- Электроснабжение
Есть
- Естественное освещение
Есть
- Вода
Есть
- Газ
Есть
- Санузел
Есть
- Принадлежность объекта
Частная
- НДС
НДС нет (0%)
- Юридический адрес
Да
- Номер договора
816/1 от 22.10.2025
Агентство недвижимости Метриум
Контактное лицо
Примечание
Местоположение
- Область
- Населенный пункт
- Улица
- Номер дома
129/А
- Район города
- Микрорайон
- Координаты
53.8607, 27.5748
