Продажа административное здание в Советском районе
до 1 804 288 р.
2 236 р.≈ 793 $ за м²
Тип
Площадь
Описание
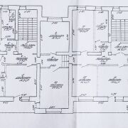
Отдельно стоящее административное кирпичное 2-х этажное здание c двумя отдельными входами S=807м2. Кабинетная разбивка рациональное размещение всех кабинетов относительно общей площади( схема поэтажных планов), оптоволокно во всех кабинетах, имеется серверная, приточно-вытяжная вентиляция, часть кабинетов оборудованы кондиционерами, установлено видеонаблюдение по периметру дома в здание и на коридорах, своя парковка на 12 машин, есть складские помещения и площади для архива, автономная котельная на газу позволяет регулировать коммунальные расходы в зимний период, доступ 24/7 дней в неделю. Во всех кабинетах произведён ремонт, все инженерные сети исправны.
Удобное транспортное сообщение, рядом остановки общественного транспорта, стартовали работы по строительству метро (станция будет в шаговой доступности).
Параметры объекта
- Тип объекта
Здание
- Площадь общая
807 м²
- Этажность
2
- Год постройки
2000
- Материал стен
Кирпичный
- Высота потолков
2.7 м
- Ремонт
Нормальный
- Отопление
Есть
- Электроснабжение
Есть
- Естественное освещение
Есть
- Вода
Есть
- Газ
Есть
- Санузел
Есть
- Парковка
Есть
- Принадлежность объекта
Частная
- НДС
НДС нет (0%)
- Расположение
В бизнес центре
- Юридический адрес
Да
- Номер договора
531/1 от 12.06.2025
Оснащение
Кондиционер
Видеонаблюдение
Компьютерная сеть
Интернет
Отдельный вход
Примечание
Местоположение
- Область
- Населенный пункт
- Улица
- Номер дома
30
- Район города
- Микрорайон
- Координаты
53.9468, 27.5915
