Продажа производства с земельным участком 0,92 га в Минске
12 437 100 р.
4 436 р.≈ 1 605 $ за м²
- г. Минскул. Центральная, 49
- Автозаводская
- На карте
Тип
Площадь
Этаж
Описание
Производственный объект находится по адресу ул.Центральная, 49 - в индустриальной части г.Минска. Удобное расположение рядом с одной из крупнейших магистралей города (пр-т Партизанский) и МКАД. В шаговой доступности ст.м.Автозаводская.
Общая площадь строений, расположенных на участке земли 0,9153 га, составляет 2802,9 кв.м.
Комплекс зданий включает:
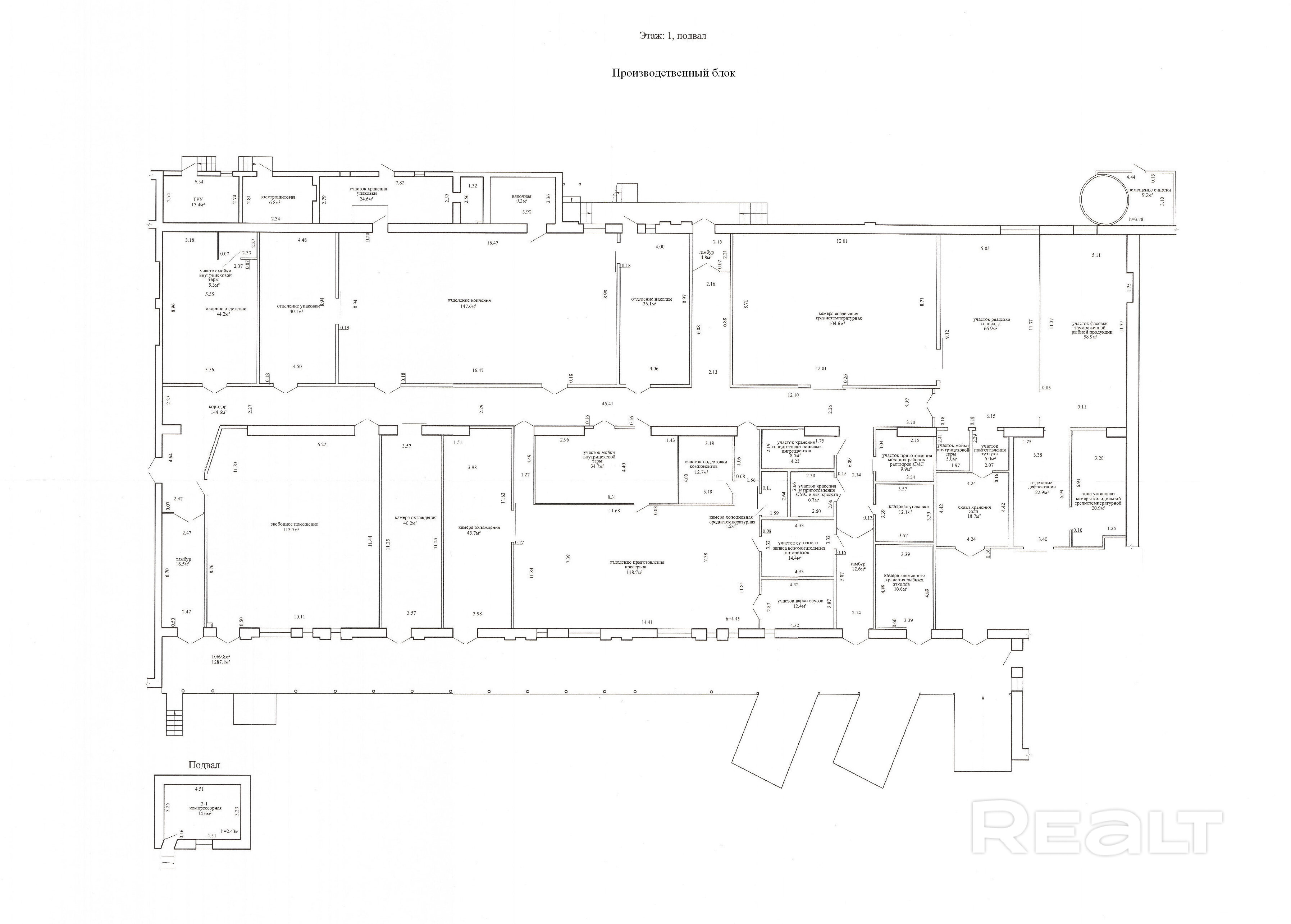
- производственный блок – 1287,1 кв.м.
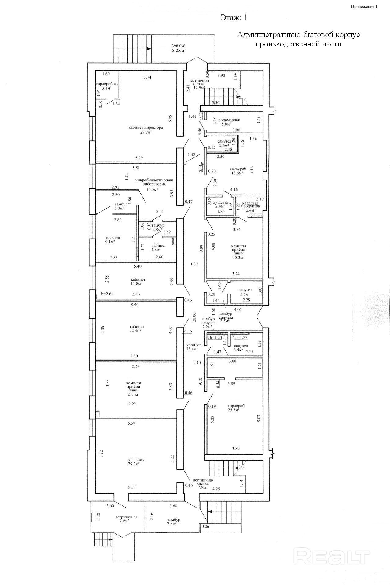
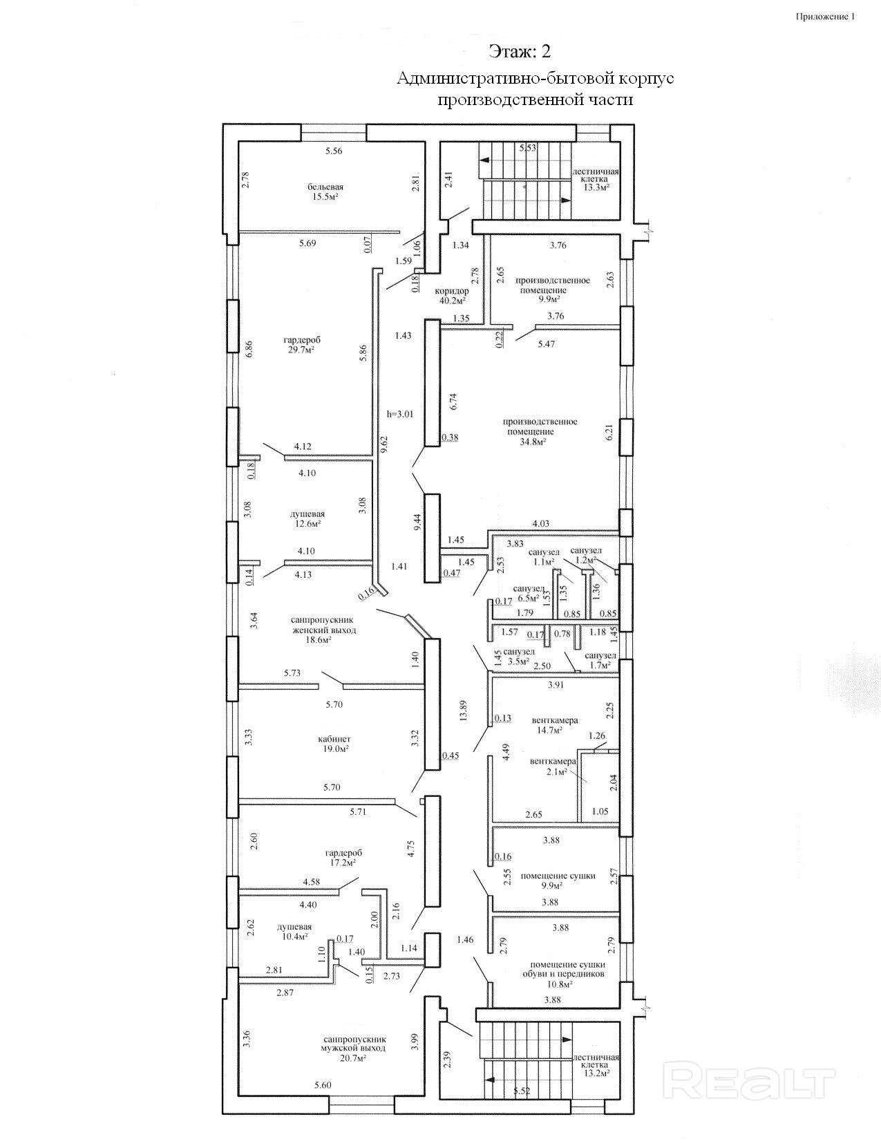
- административно-бытовой корпус производственной части – 612,6 кв.м.
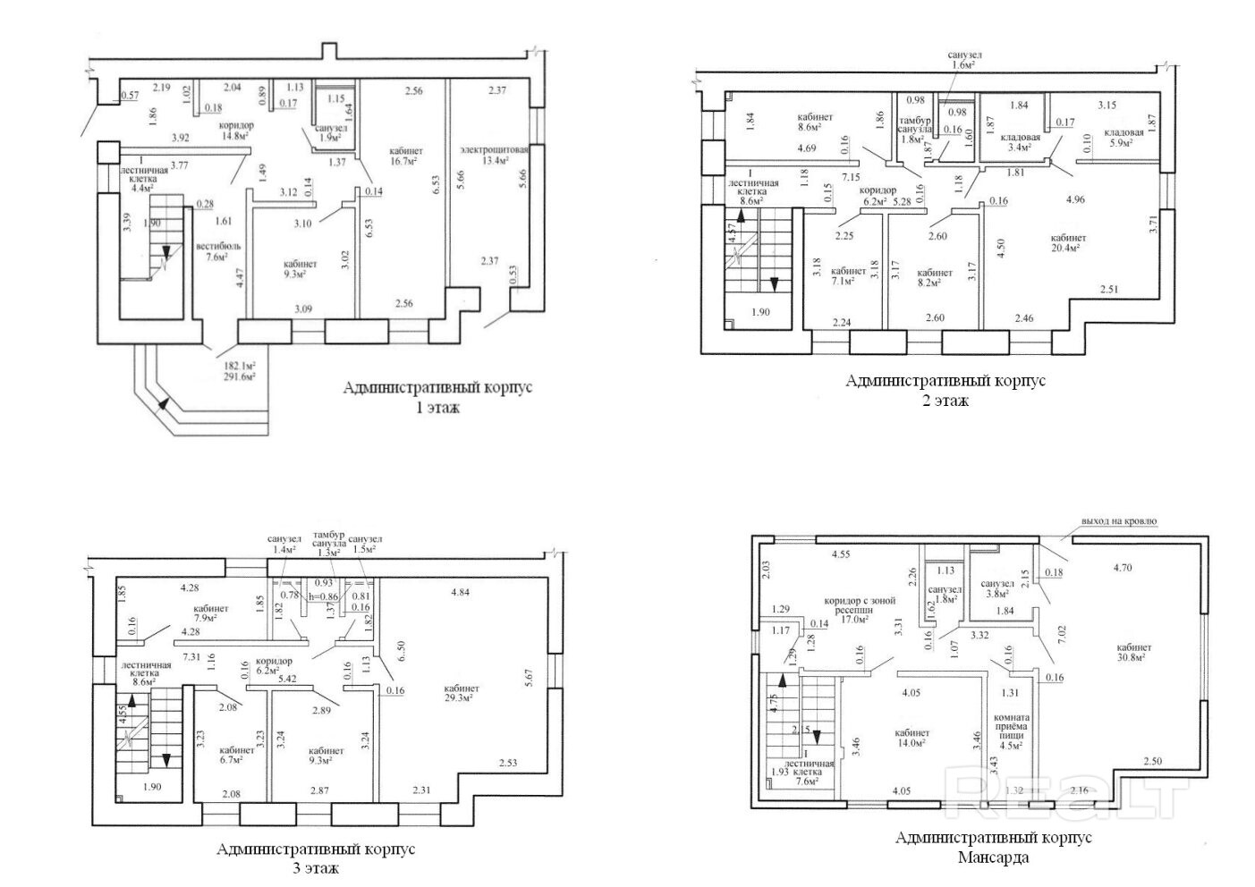
- административный блок – 291,6 кв.м.
- складское помещение – 194,0 кв.м.
- холодильная камера – 196,3 кв.м.
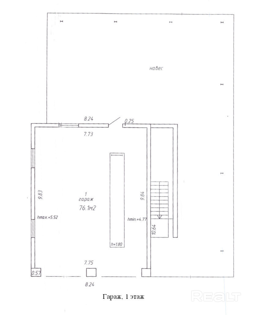
- гараж для техники – 139,2 кв.м.
- помещение электрика – 47,1 кв.м.
- магазин готовой продукции – 25,8 кв.м.
- здание КПП – 9,2 кв.м.
Помещения как производственного, так и административно-бытового назначения полностью соответствуют требованиям действующих ТНПА.
На объекте проведены коммуникации:
- собственный газопровод и котельная на газообразном топливе
- отопление АБК водяное от собственной котельной
- выделенная мощность по ТУ – 185 кВт (рядом расположена ТП на 400 кВА с резервом)
- канализация К3
- система приточно-вытяжной вентиляции
- холодное и горячее водоснабжение
Объект оснащен технологическим оборудованием для производства пищевой продукции, погрузочно-разгрузочной техникой, оборудован средне- и низкотемпературными холодильными камерами (сырье t -23ºC), рампой с доклевеллерами (перегрузочными мостами).
Благоустроенная территория с озеленением ограждена забором, установлена система видеонаблюдения и контроля доступа. Асфальтированная площадка для заезда и разворота всех видов транспорта, выделен участок для организации автомобильной стоянки.
Проектом развития территории планируется устройство автодороги, примыкающей к земельному участку с восточной границы участка
Свяжитесь с нами для получения дополнительной информации и организации просмотра!
Покупатель не оплачивает услуги агентства!
Параметры объекта
- Тип объекта
Производство
- Площадь общая
2802.90 м²
- Этаж / этажность
1 / 3
- Год постройки
1980
- Материал стен
Кирпичный
- Ремонт
Хороший
- Отопление
Есть
- Электроснабжение
Есть
- Электрическая мощность
185 кВт
- Естественное освещение
Есть
- Вода
Есть
- Санузел
Есть
- Оборудование
Есть
- НДС
НДС включен
- Юридический адрес
Да
- Номер договора
249/1 от 01.03.2026
Оснащение
Отдельный вход
Отдел коммерческой недвижимости
Контактное лицо
Примечание
Местоположение
- Область
- Населенный пункт
- Улица
- Номер дома
49
- Район города
- Микрорайон
- Координаты
53.8769, 27.6562
