Купить производство, д. Боровляны, ул. Березовая роща, 108 (Минский р-н, Минская область)
1 100 000 р.
Тип
Площадь
Описание
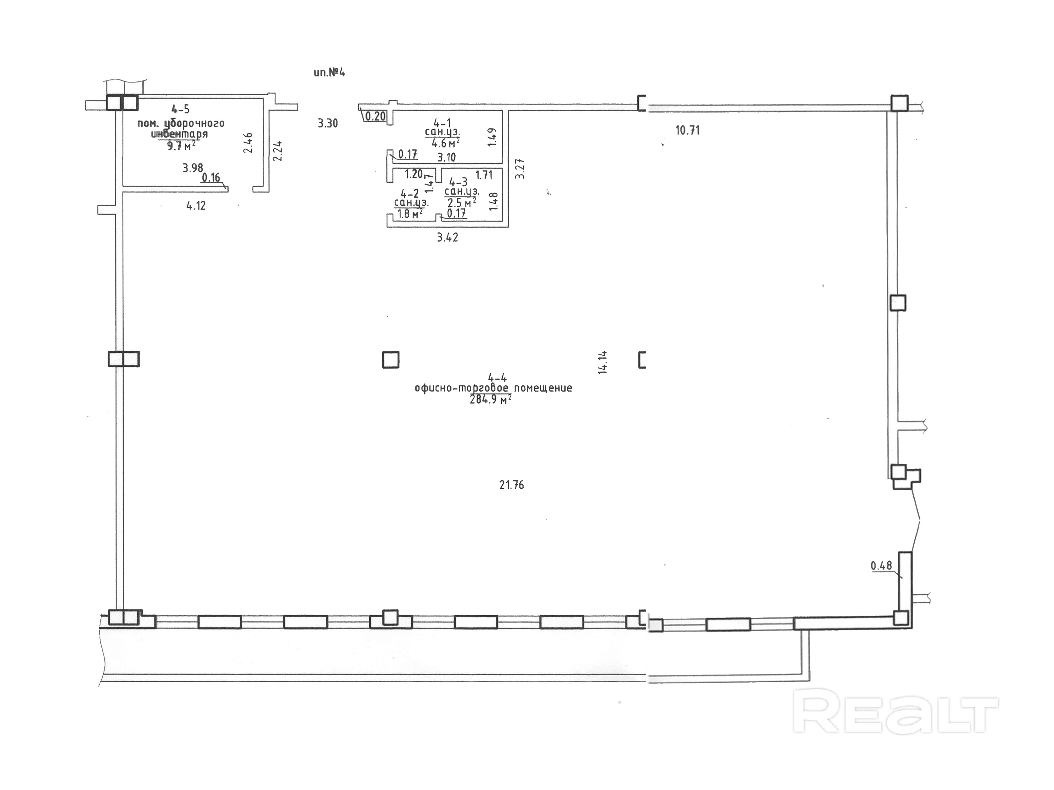
Продается изолированное коммерческое помещение премиальной локации в ТЦ «Перекресток» (ул. Березовая Роща, Боровляны). Это не просто помещение — это готовый, отлаженный инвестиционный инструмент.
Общая площадь - 303,5 кв м.
Два входа: главный - с улицы, а также с обратной стороны здания - для погрузки-разгрузки.
Возможность использовать лифт для погрузочных работ.
Коммуникации:
Электричество с неограниченной мощностью, что дает возможность использовать под любые цели.
Вода, канализация- центральные, два обустроенных санузла.
Приточно-вытяжная вентиляция, возможность устройства вытяжки при необходимости.
Текущие арендаторы - 3 стабильных компании:
Магазин «7 пятниц», магазин обоев, пункт выдачи Wildberries
Окупаемость: Расчетный срок ~8,5 лет.
Дополнительный потенциал: Возможность индексации арендных ставок в соответствии с рыночным ростом и договорными условиями.
Локация — главный торговый центр микрорайона с якорными арендаторами (продуктовый магазин, товары для дома, услуги и другое).
Есть реальная опция по увеличению арендного потока путем добавления арендаторов на свободные площади.
Остановка общественного транспорта расположена буквально в шаге от входа в помещение. Это гарантирует колоссальный пешеходный трафик из дня в день.
Ключевые преимущества для инвестора:
✅ Готовый бизнес-актив с моментальным cash-flow. Не нужно искать арендаторов — они уже есть и платят.
✅ Предсказуемая доходность. Окупаемость ~8,5 лет с потенциалом роста.
✅ Максимальная ликвидность локации. Помещение у ГЛАВНОГО входа в самый популярный ТЦ Боровлян.
✅ «Тройная» диверсификация риска. Доход формируется от 3-х арендаторов из разных сфер (розница, стройматериалы, логистика), что снижает риски простоев.
✅ Потенциал роста доходности. Возможность индексации арендной платы и оптимизации площадей, дополнение других арендаторов (вендинг).
Подробности - по телефону!
Поможем продать Вашу недвижимость для покупки этой!
Result Estate — ваш надёжный партнёр на рынке недвижимости.
20 лет опыта наших агентов по недвижимости — это ваш ключ к идеальной сделке: глубокое знание рынка, эксклюзивные предложения, юридическая безопасность и индивидуальный подход. Мы экономим ваше время, деньги и нервы, помогая купить, продать недвижимость быстро, выгодно и с уверенностью в результате!
Все актуальные предложения в одном месте — смотрите на нашем сайте.
Опишите свои пожелания — и мы оперативно подберем для вас лучшие варианты!
ООО «Результативная недвижимость», лицензия выдана Минюстом 26.09.2023 № 02240470, УНП 193703497
Связываясь с нами по данному объекту, Вы даете свое согласие на сбор и обработку персональных данных автоматически.
Параметры объекта
- Тип объекта
Производство
- Площадь общая
303.50 м²
- Раздельных помещений
1
- Материал стен
Кирпичный
- Ремонт
Хороший
- Отопление
Есть
- Электроснабжение
Есть
- Естественное освещение
Есть
- Вода
Есть
- Санузел
Есть
- Парковка
Есть
- Принадлежность объекта
Частная
- НДС
НДС нет (0%)
- Расположение
В торговом центре
- Номер договора
9/1 от 15.01.2026
Оснащение
Оживленное место
Отдельный вход
Ирина Койкова
Агент по недвижимости
Примечание
Местоположение
- Область
- Район
- Населенный пункт
- Улица
- Номер дома
108
- Сельсовет
Боровлянский с/с
- Направление
Логойское, 5 км от МКАД
- Координаты
54.0037, 27.6772
