Купить производство, д. Хвойники, ул. Минская, 13/2 (Червенский р-н, Минская область)
от 3 719 115 р.
Продажа
Следить за ценой
Производство
Тип
3322 м²
Площадь
18.02.2026ID 4042464
Параметры объекта
- Тип объекта
Производство
- Площадь общая
3322 м²
- Этажность
2
- Год постройки
2018
- Материал стен
Блочный
- Высота потолков
4 м
- Ремонт
Нормальный
- Отопление
Есть
- Электроснабжение
Есть
- Естественное освещение
Есть
- Вода
Есть
- Газ
Есть
- Санузел
Есть
- Оборудование
Есть
- Количество телефонов
2 телефона
- Парковка
Есть
- Принадлежность объекта
Частная
Оснащение
Охрана
Компьютерная сеть
Отдельный вход
Мебель
Готовый бизнес
Продавец
Ксения
Контактное лицо
Примечание
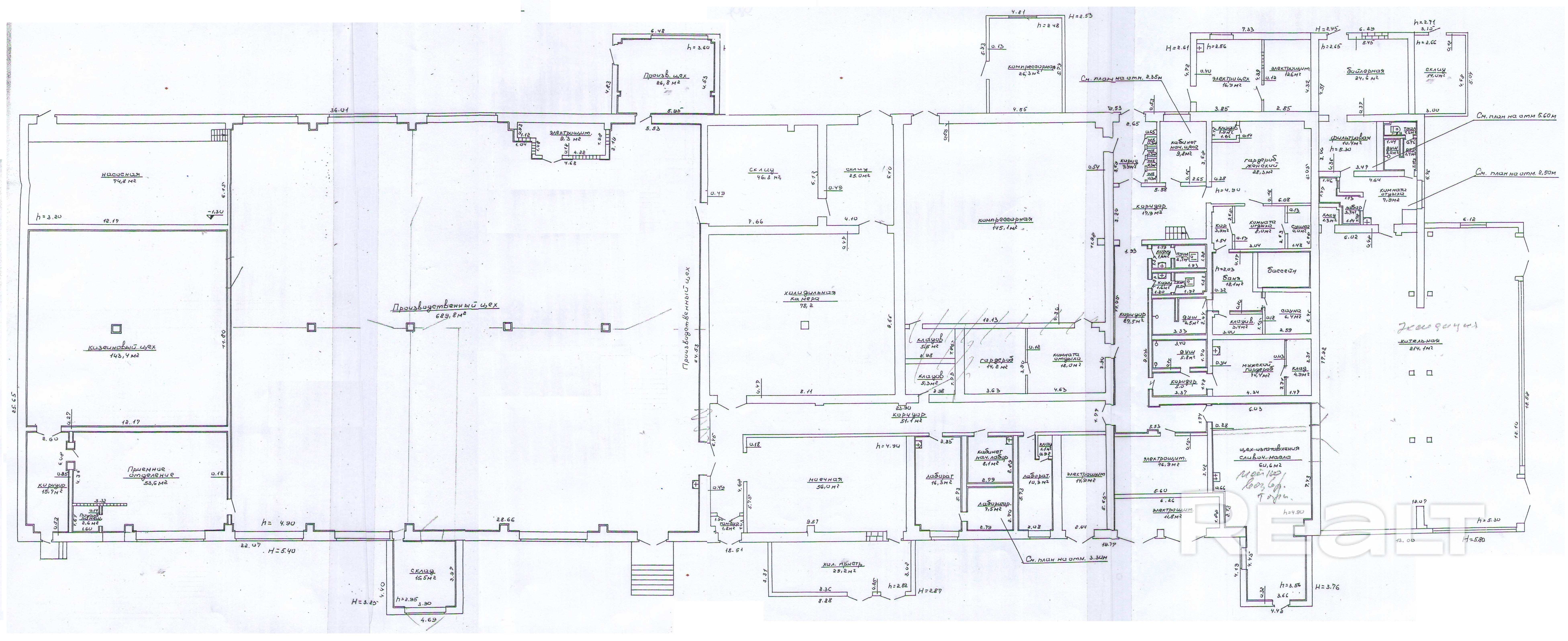
производственно - складское здание с административно-бытовым корпусом общей площадью 3322,3м.кв. Год постройки и введения в эксплуатацию 2018г. Отопление- твердое топливо. Водоснабжение и канализация - централизованные. Горячая вода - автономная. Два трансформатора по 1000клВт (один резервный). Есть оборудование по производству масла холодного отжима (три пресса) объемом переработки 30т. зерна в сутки. Территория огорожена и охраняется. Автостоянка. Хорошее транспортное сообщение. Торг
Местоположение
- Область
- Район
- Населенный пункт
- Улица
- Номер дома
13/2
- Сельсовет
Червенский с/с
- Направление
Могилёвское, 52 км от МКАД
- Координаты
53.720626533, 28.388972374
