Скачать приложение Realt
Скачать

Продажа помещений под услуги, торговлю, общепит, развлечения в ТЦ «COOLMAN»!

3 163 681 р.

1 122 430 $

3 986 р. 1 414 $ за м²

Продажа
Следить за ценой
Кафе

Тип

794 м²

Площадь

1 из 3

Этаж

05.12.2025ID 3966332
pdf
Обзор по коммерческой недвижимости
Сделки, цены и ставки аренды за 2025 год

Описание

Продажа помещений под услуги, торговлю,

общепит, развлечения в ТЦ «COOLMAN»!

В центре Минска! Первый, цокольный этаж с отдельными входами!

 

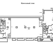
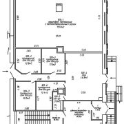
 794  м2   1-й;  цокольный  этаж

 

Расположение

·  в центре города

·  в районе Комаровского рынка, площади Я. Коласа

·  станция метро «пл.Я.Коласа»

·  добраться можно на любом транспорте (трамвай, троллейбус, автобус, маршрутное такси), на ваш выбор

·  удобный подъезд на автомобиле, рядом наземная парковка, многоуровневый паркинг

·  максимально развитая инфраструктура района

Здание

·  2009 год постройки

·  материал стен: кирпич, бетон

·  этажей: 4

·  доступность: 24/7

·  охрана, видеонаблюдение

Помещения

·  любое назначение: торговля, услуги, общепит, развлечения

·  1-й этаж: 272 м2; два отдельных входа с ул. Кульман, два входа с торгового центра; со своим спуском в цокольный этаж; окна-витрины; высота потолков 3.7 м

·  цокольный этаж: 521 м2; с естественным освещением; пять отдельных входов- со всех сторон здания; высота потолков от 3 до 3.6 м

·  санузлы, кухонные зоны

·  система кондиционирования

·  хороший ремонт; все коммуникации центральные

·  низкие эксплуатационные расходы 

·  легкость перепланировки (нет несущих перегородок)

·  всё сдано в аренду

Сделку сопровождает агентство.

Покупатель услуги агентства не оплачивает.

Звоните, пишите: (Viber, WhatsApp, Telegram)

Лицензия: 02240/483 МЮ РБ, 18.05.2024

Параметры объекта

  • Тип объекта

    Кафе

  • Площадь общая

    794 м²

  • Этаж / этажность

    1 / 3

  • Материал стен

    Кирпичный

  • Ремонт

    Хороший

  • Отопление

    Есть

  • Электроснабжение

    Есть

  • Естественное освещение

    Есть

  • Вода

    Есть

  • Санузел

    Есть

  • Оборудование

    Есть

  • Парковка

    Есть

  • Принадлежность объекта

    Частная

  • НДС

    НДС нет (0%)

  • Юридический адрес

    Да

  • Номер договора

    333/1,335/1,336/1,337/1 от 30.09.2025

Оснащение

Охрана

Видеонаблюдение

Оживленное место

Отдельный вход

Рампа

Мебель

Примечание

• под услуги, торговлю, общепит, развлечения • центр Минска • метро «пл.Я.Коласа» • 794 м2 • 1-й; цокольный этаж • 7-отдельных входов • высокие потолки, естественное освещение, окна-витрины • все сдано в аренду

Местоположение