Продажа помещений под услуги, торговлю, общепит, развлечения в ТЦ «COOLMAN»!
2 179 990 р.
3 749 р.≈ 1 330 $ за м²
- г. Минскул. Кульман, 3
- Площадь Якуба Коласа
- 5 минут
- На карте
Тип
Площадь
Этаж
Описание
Продажа помещений под услуги, торговлю,
общепит, развлечения в ТЦ «COOLMAN»!
В центре Минска. С отдельными входами!
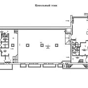
582 м2 1-й; цокольный этаж
Расположение
· в центре города
· в районе Комаровского рынка, площади Я. Коласа
· станция метро «пл.Я.Коласа»
· добраться можно на любом транспорте (трамвай, троллейбус, автобус, маршрутное такси), на ваш выбор
· удобный подъезд на автомобиле, рядом наземная парковка, многоуровневый паркинг
· максимально развитая инфраструктура района
Здание
· 2009 год постройки
· материал стен: кирпич, бетон
· этажей: 4
· доступность: 24/7
· охрана, видеонаблюдение
Помещения
· любое назначение: торговля, услуги, общепит, развлечения
· 1-й этаж с отдельным входом (61 м2), со своим спуском в цокольный этаж
· цокольный этаж с естественным освещением, 521 м2 (весь этаж)
· отдельных входов: 6 шт (1- с первого этажа; 5- с цокольного этажа ( со всех сторон здания)
· высота потолков от 3 до 3.7 м
· санузлы, кухонные зоны
· система кондиционирования
· хороший ремонт; все коммуникации центральные
· низкие эксплуатационные расходы
· легкость перепланировки (нет несущих перегородок)
· всё сдано в аренду
Сделку сопровождает агентство.
Покупатель услуги агентства не оплачивает.
Звоните, пишите: (Viber, WhatsApp, Telegram)
Лицензия: 02240/483 МЮ РБ, 18.05.2024
Параметры объекта
- Тип объекта
Кафе
- Площадь общая
582 м²
- Этаж / этажность
1 / 3
- Год постройки
2009
- Материал стен
Кирпичный
- Ремонт
Хороший
- Отопление
Есть
- Электроснабжение
Есть
- Естественное освещение
Есть
- Вода
Есть
- Санузел
Есть
- Оборудование
Есть
- Парковка
Есть
- Принадлежность объекта
Частная
- НДС
НДС нет (0%)
- Расположение
В торговом центре
- Юридический адрес
Да
- Номер договора
333/1,336/1,337/1 от 30.09.2025
Оснащение
Охрана
Видеонаблюдение
Оживленное место
Отдельный вход
Рампа
Мебель
Татьяна Улицкая
Агент по недвижимости
Примечание
Местоположение
- Область
- Населенный пункт
- Улица
- Номер дома
3
- Район города
- Координаты
53.9197, 27.5825
