Продажа помещения под общественное питание в сердце Минска!
704 727 р.
2 964 р.≈ 1 085 $ за м²
- г. Минскул. Немига, 38
- Площадь Богушевича
- На карте
Тип
Площадь
Этаж
Описание
Уникальная логистика и высокая проходимость обеспечены благодаря трем отдельным входам:
· Отдельный вход с улицы (24/7).
· Доступ через центральный лобби бизнес-центра.
· Отдельный въезд под шлагбаум во внутренний двор с рампой для погрузки-разгрузки.
Это идеальное решение для бесперебойной работы служб доставки и приема продукции.
Характеристики:
Выделенная электрическая мощность 50 кВт.
мощная приточно-вытяжная вентиляция и профессиональная вытяжка над технологической зоной.
· Посадочный зал 107 м2
с зоной под гардероб;
· Оборудованная барная стойка;
· Полноценный цех кухни;
· Подсобные помещения для хранения и разделки продукции;
· Отдельный кабинет бухгалтерии/администратора;
· Раздельные санузлы (для гостей и для персонала);
· Увеличенное количество точек водоснабжения в подсобных и моечных зонах (удобство для интенсивной эксплуатации).
Преимущества локации:
Объект находится в зоне с высокой концентрацией офисов класса А и Б, а также в непосредственной близости от строящегося жилого комплекса премиум-сегмента. Это обеспечивает стабильный поток состоятельной аудитории как в дневные часы (business lunch, встречи), так и вечером.
· Высокий пешеходный трафик: расположение у пешеходного перехода и остановки общественного транспорта.
· Максимальная видимость: огромные витринные стекла дают отличную возможность для размещения рекламы. Предусмотрены две вывески, которые обеспечивают идеальный обзор фасада как с проезжей части центральной магистрали, так и с боковых обзорных точек,
наземная парковка
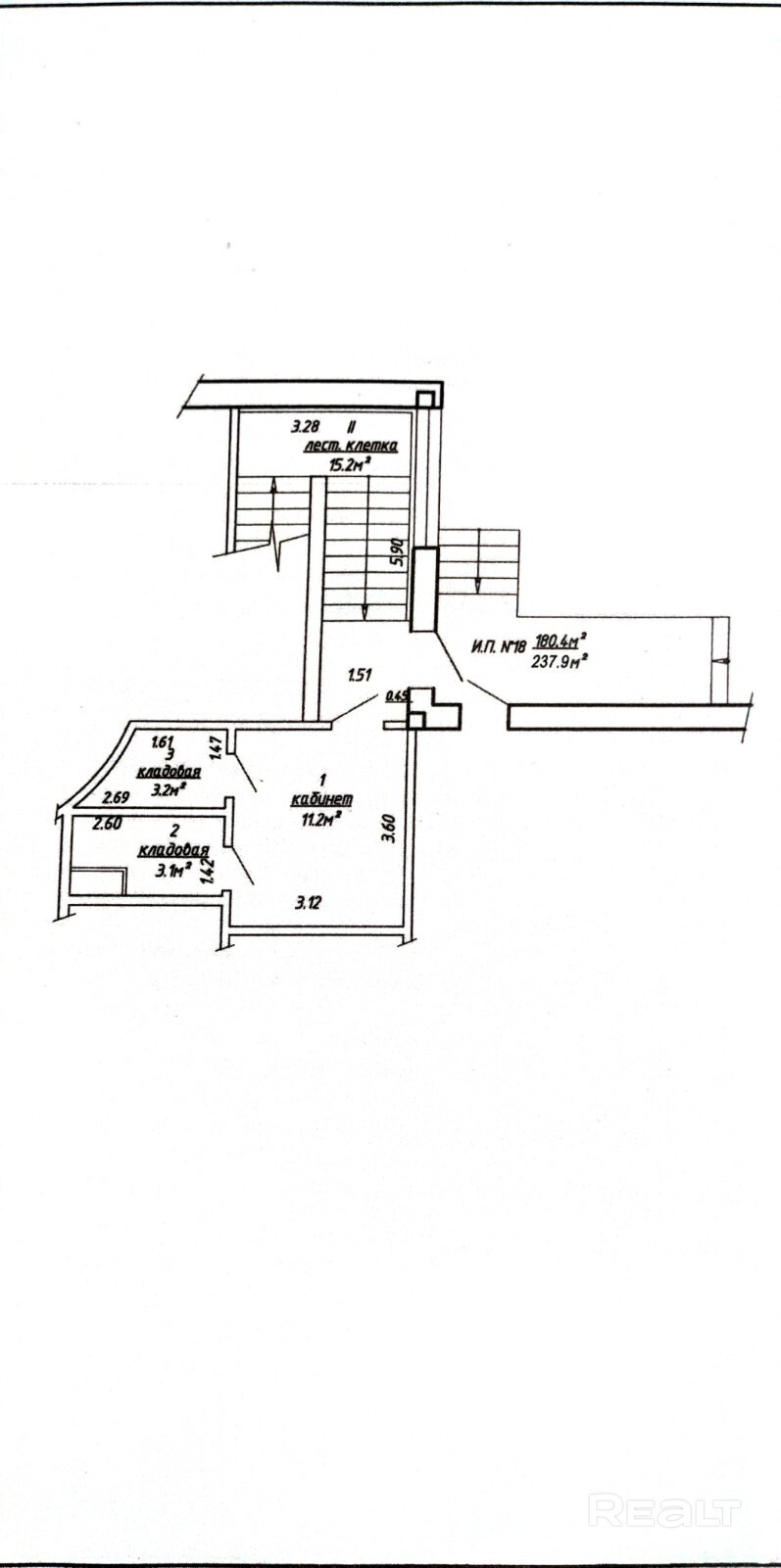
Параметры объекта
- Тип объекта
Кафе
- Площадь общая
237.90 м²
- Этаж / этажность
-1 / 4
- Год постройки
2002
- Раздельных помещений
10
- Отопление
Есть
- Электроснабжение
Есть
- Естественное освещение
Есть
- Вода
Есть
- Санузел
Есть
- Принадлежность объекта
Частная
- НДС
НДС нет (0%)
- Юридический адрес
Да
- Номер договора
440/1 от 31.03.2026
Отдел коммерческой недвижимости
Контактное лицо
Примечание
Местоположение
- Область
- Населенный пункт
- Улица
- Номер дома
38
- Район города
- Микрорайон
- Координаты
53.8996, 27.5442
