Продажа спортивного зала в Малиновке
1 911 093 р.
Тип
Площадь
Этаж
Описание
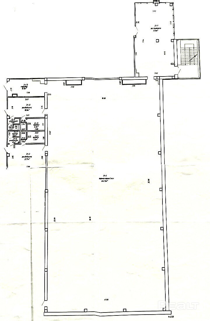
В современном центре продается спортивный зал площадью 791 кв.м для игры в мини-футбол с искусственным покрытием.
Возможно перепрофилировать и использовать под занятия игровыми видами спорта: батутный центр, скаладром.
Имеются вспомогательные помещения: раздевалки, душевые, тренерская. Зал оснащён современным оборудованием и спортивным инвентарём.
Коммуникации и инженерия:
Принудительная приточно-вытяжная вентиляция;
Центральное отопление;
Пожарно-охранная сигнализация;
Видеонаблюдение;
Компьютерная сеть;
Оптоволокно («Белтелеком», «А1»);
Телефонные линии;
Полезная высота (от пола до металлоконструкций (ферм) - 6 метров.
Парковка, развитая инфраструктура, кафе на первом этаже здания, рядом супермаркет, большой выбор точек общественного питания, аптека, детский развивающий центр.
Шаговая доступность остановок общественного транспорта, близость ст. метро «Петровщина», «Малиновка» (до 15 минут на общественном транспорте).
Возможна покупка в кредит, лизинг или рассрочку!
Звоните, ответим на все Ваши вопросы.
Покупатель услуги агентства не оплачивает.
Параметры объекта
- Тип объекта
Фитнес центр
- Площадь общая
791 м²
- Этаж / этажность
2 / 3
- Раздельных помещений
1 - 4
- Материал стен
Монолитный
- Высота потолков
4 м
- Ремонт
Хороший
- Отопление
Есть
- Естественное освещение
Есть
- Санузел
Есть
- Количество телефонов
3 телефона
- Принадлежность объекта
Частная
- НДС
НДС включен
- Расположение
В бизнес центре
- Юридический адрес
Да
- Номер договора
12/1 от 30.06.2025
Оснащение
Кондиционер
Видеонаблюдение
Охрана
Сигнализация
Компьютерная сеть
Отдельный вход
Примечание
Местоположение
- Область
- Населенный пункт
- Улица
- Номер дома
55
- Район города
- Микрорайон
- Координаты
53.8624, 27.447
