Продажа торгового помещения в ТРЦ #1 Смолевичи с якорным гипермаркетом «Green»
от 868 000 р.
от 1 610 р.≈ от 583 $ за м²
Продажа
Следить за ценой
Магазин
Тип
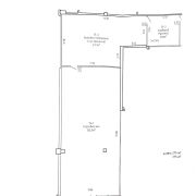
217.40 м²
Площадь
1 из 1
Этаж
14.05.2026ID 4037889
Описание
Торговое помещение с действующим арендатором – магазин Пинскдрев. Помещение находится рядом с якорным продуктовым оператором "Green":
- очень хорошее расположение в ТРЦ;
- есть выход на отдельную рампу для погрузки-разгрузки товаров;
- ТРЦ – объект с высокой посещаемостью в молодом микрорайоне.
По всем вопросам смело звоните.
Параметры объекта
- Тип объекта
Магазин
- Площадь общая
217.40 м²
- Этаж / этажность
1 / 1
- Год постройки
2020
- Раздельных помещений
1
- Высота потолков
3 м
- Ремонт
Хороший
- Электроснабжение
Есть
- Электрическая мощность
7 кВт
- Парковка
Есть
- Принадлежность объекта
Частная
- НДС
НДС нет (0%)
- Расположение
В торговом центре
- Юридический адрес
Да
- Номер договора
8/4 от 09.02.2026
Оснащение
Охрана
Видеонаблюдение
Оживленное место
Рампа
Интернет
Примечание
Торговое помещение с действующим арендатором – магазин Пинскдрев. Помещение находится рядом с якорным продуктовым оператором "Green": - очень хорошее расположение в ТРЦ; - есть выход на отдельную рампу для погрузки-разгрузки товаров; - ТРЦ – объект с высокой посещаемостью в молодом микрорайоне. По всем вопросам смело звоните.
Местоположение
- Область
- Район
- Населенный пункт
- Номер дома
1
- Направление
Московское, 28.4 км от МКАД
- Координаты
54.0444, 28.0729
