Продажа помещения под арендный бизнес с отличным трафиком в ЖК «Минск-Мир»
588 170 р.
9 851 р.≈ 3 467 $ за м²
- г. Минскул. Аэродромная, 32
- Аэродромная (2024)
- На карте
Тип
Площадь
Этаж
Описание
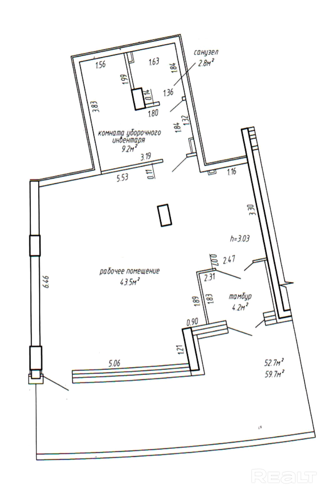
Продаётся торговое помещение с отличным ремонтом на 1-м этаже жилого дома по адресу: ул. Аэродромная, 32.
- 2 отдельных входа с доступом 24/7;
- очень высокий пеший и авто трафик: помещение расположено у крупного перекрёстка, рядом остановка общественного транспорта, в пешей доступности ст.м. «Аэродромная»;
- проведены все коммуникации: отопление, вентиляция, водоснабжение, система кондиционирования, видеонаблюдение, пожарная и охранная сигнализации.
В помещении имеется арендатор.
Помещение подойдёт как под арендный бизнес, так и свой (магазин, шоурум, кафе, а также сферу услуг).
Покупатель не оплачивает услуги агентства.
Параметры объекта
- Тип объекта
Торговое помещение
- Площадь общая
59.70 м²
- Этаж / этажность
1 / 21
- Год постройки
2017
- Раздельных помещений
1 - 2
- Высота потолков
3 м
- Ремонт
Хороший
- Отопление
Есть
- Электроснабжение
Есть
- Электрическая мощность
6 кВт
- Естественное освещение
Есть
- Вода
Есть
- Санузел
Есть
- Принадлежность объекта
Частная
- НДС
НДС нет (0%)
- Расположение
В жилом доме
- Номер договора
158/1 от 03.02.2026
Оснащение
Кондиционер
Сигнализация
Видеонаблюдение
Оживленное место
Отдельный вход
Интернет
Александр Крюков
Агент по недвижимости
Примечание
Местоположение
- Область
- Населенный пункт
- Улица
- Номер дома
32
- Район города
- Микрорайон
- Координаты
53.8715, 27.5553
