Продаётся административное помещение 59,7 м² с арендатором - топ-трафик, 2 входа, ЖК "Минск-Мир"
588 170 р.
9 851 р.≈ 3 467 $ за м²
- г. Минскул. Аэродромная, 32
- Аэродромная (2024)
- На карте
Тип
Площадь
Этаж
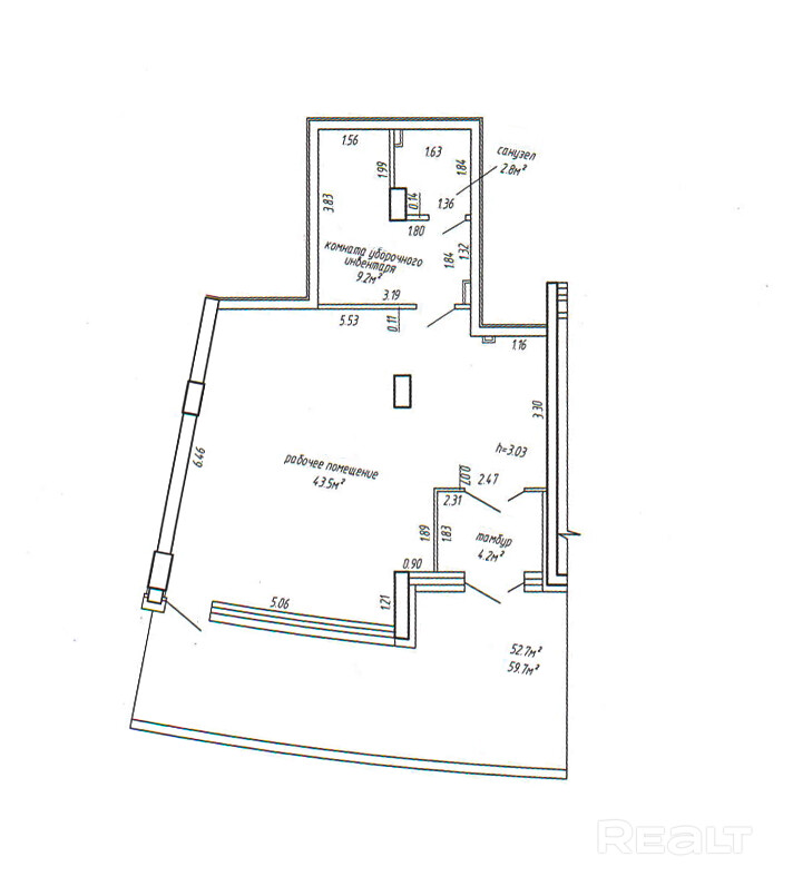
Описание
Продаётся ликвидное административное помещение 59,7 м2 на 1-м этаже жилого дома в ЖК «Минск-Мир» по адресу: ул. Аэродромная, 32 — отличный вариант под арендный бизнес или для собственного проекта.
Ключевое преимущество — трафик и видимость:помещение расположено у крупного перекрёстка, рядом остановка общественного транспорта, в пешей доступности ст. м. «Аэродромная». Максимальная узнаваемость точки и удобство для клиентов каждый день.
Формат, который нравится арендаторам и бизнесу:- 2 отдельных входа с доступом 24/7 — удобно для разделения потоков/зон, работы по графику и повышения привлекательности для арендаторов;
- качественный ремонт — можно запускаться без лишних затрат и затяжных работ;
- высота потолков 3 м, естественное освещение.
Полностью готово по инженерии и безопасности:отопление, вентиляция, водоснабжение, кондиционирование, интернет, видеонаблюдение, пожарная и охранная сигнализации.
Уже есть арендатор — можно рассматривать как покупку объекта с действующим источником дохода.
Подходит под разные форматы: магазин, шоурум, кафе, сфера услуг и другие виды коммерции.
Покупатель не оплачивает услуги агентства.
Звоните/пишите — организуем просмотр и ответим на вопросы по объекту.
Параметры объекта
- Тип объекта
Торговое помещение
- Площадь общая
59.70 м²
- Этаж / этажность
1 / 21
- Год постройки
2017
- Раздельных помещений
1 - 2
- Высота потолков
3 м
- Ремонт
Хороший
- Отопление
Есть
- Электроснабжение
Есть
- Электрическая мощность
6 кВт
- Естественное освещение
Есть
- Вода
Есть
- Санузел
Есть
- Принадлежность объекта
Частная
- НДС
НДС нет (0%)
- Расположение
В жилом доме
- Новостройка
Да
- Номер договора
39/2 от 18.02.2026
Оснащение
Видеонаблюдение
Оживленное место
Сигнализация
Компьютерная сеть
Интернет
Отдельный вход
Артём Завгородний
Агент по недвижимости
Примечание
Местоположение
- Область
- Населенный пункт
- Улица
- Номер дома
32
- Район города
- Микрорайон
- Координаты
53.8715, 27.5553
