Купить торговое помещение, г. Минск, ул. Восточная, 166
714 234 р.
Тип
Площадь
Этаж
Описание
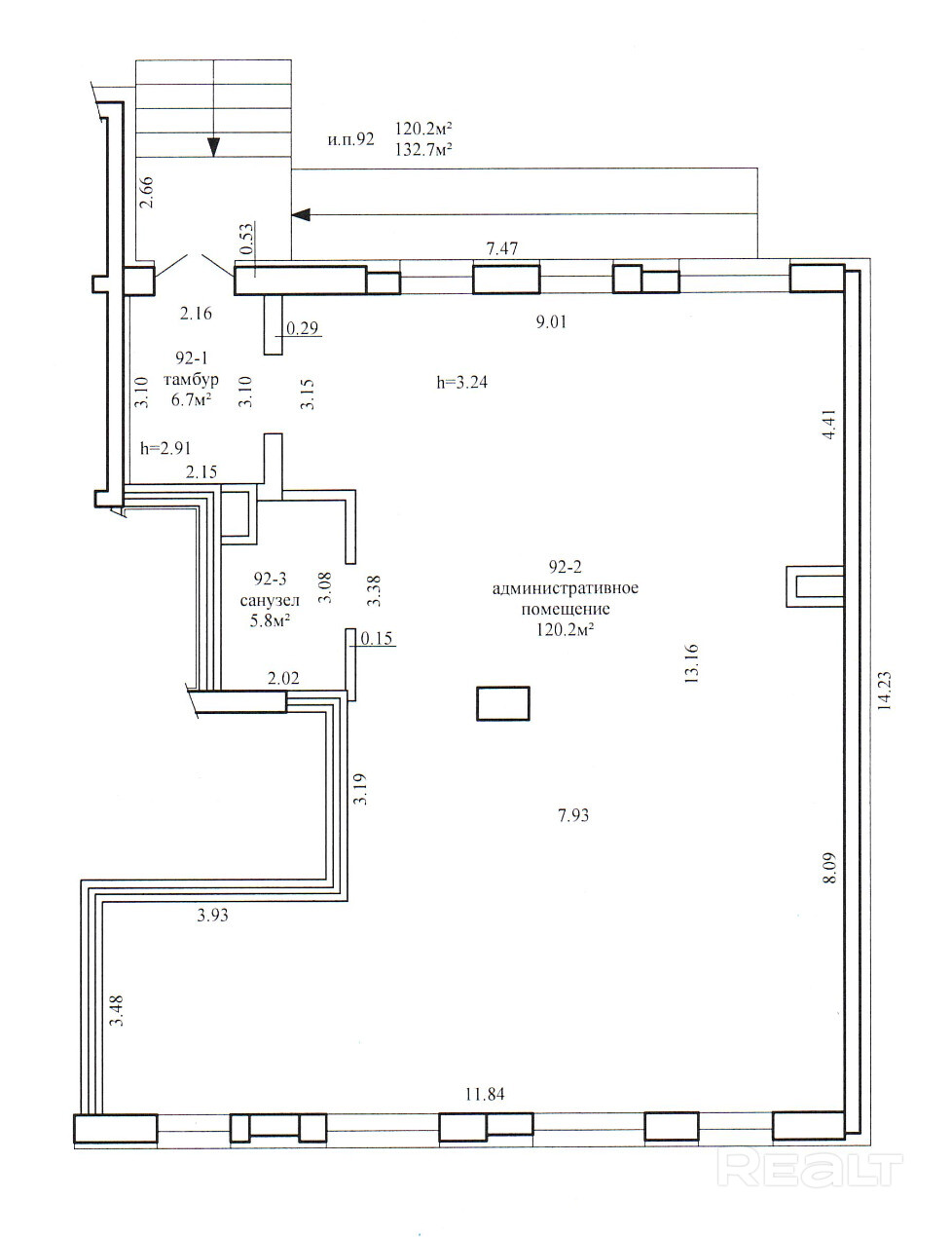
Продается светлое помещение по адресу ул. Восточная, 166 площадью 132,7 м2
Объект расположен в первой линии улицы, возле будущей станции метро Зеленый Луг.
В помещение есть отдельный вход, окна с расположены обеих сторон дома, что делает помещение очень светлым.
Высокие потолки (3,25 м), у входа в помещение есть пандус, что обеспечивает безбарьерную среду.
В помещении есть свой санузел, проведены все коммуникации: водоснабжение, электричество, отопление; есть собственные приборы учета.
Установлена пожарная сигнализация, свой вентиляционный канал, а также введено оптоволокно для интернета.
Мощность порядка 30 кВт.
В 10 минутах ходьбы от объекта расположены различные магазины и точки общепита.
С двух сторон дома, в котором расположено помещение, есть свободная плоскостная парковка.
Помещение идеально подойдет под любой вид деятельности.
Result Estate — ваш надёжный партнёр на рынке недвижимости.
20 лет опыта наших агентов по недвижимости — это ваш ключ к идеальной сделке: глубокое знание рынка, эксклюзивные предложения, юридическая безопасность и индивидуальный подход. Мы экономим ваше время, деньги и нервы, помогая купить, продать недвижимость быстро, выгодно и с уверенностью в результате!
Все актуальные предложения в одном месте — смотрите на нашем сайте.
Опишите свои пожелания — и мы оперативно подберем для вас лучшие варианты!
ООО «Результативная недвижимость», лицензия выдана Минюстом 26.09.2023 № 02240470, УНП 193703497
Связываясь с нами по данному объекту, Вы даете свое согласие на сбор и обработку персональных данных автоматически.
Параметры объекта
- Тип объекта
Торговое помещение
- Площадь общая
132.70 м²
- Этаж / этажность
1 / 10
- Раздельных помещений
1
- Материал стен
Панельный
- Отопление
Есть
- Электроснабжение
Есть
- Естественное освещение
Есть
- Вода
Есть
- Санузел
Есть
- Принадлежность объекта
Частная
- НДС
НДС нет (0%)
- Расположение
В жилом доме
- Номер договора
53/1 от 19.02.2026
Оснащение
Отдельный вход
Ирина Койкова
Агент по недвижимости
Примечание
Местоположение
- Область
- Населенный пункт
- Улица
- Номер дома
166
- Район города
- Микрорайон
- Координаты
53.9469, 27.605
