Готовый арендный бизнес в жилом районе Минска!
3 100 460 р.
Тип
Площадь
Этаж
Описание
Готовый арендный бизнес в жилом районе Минска!
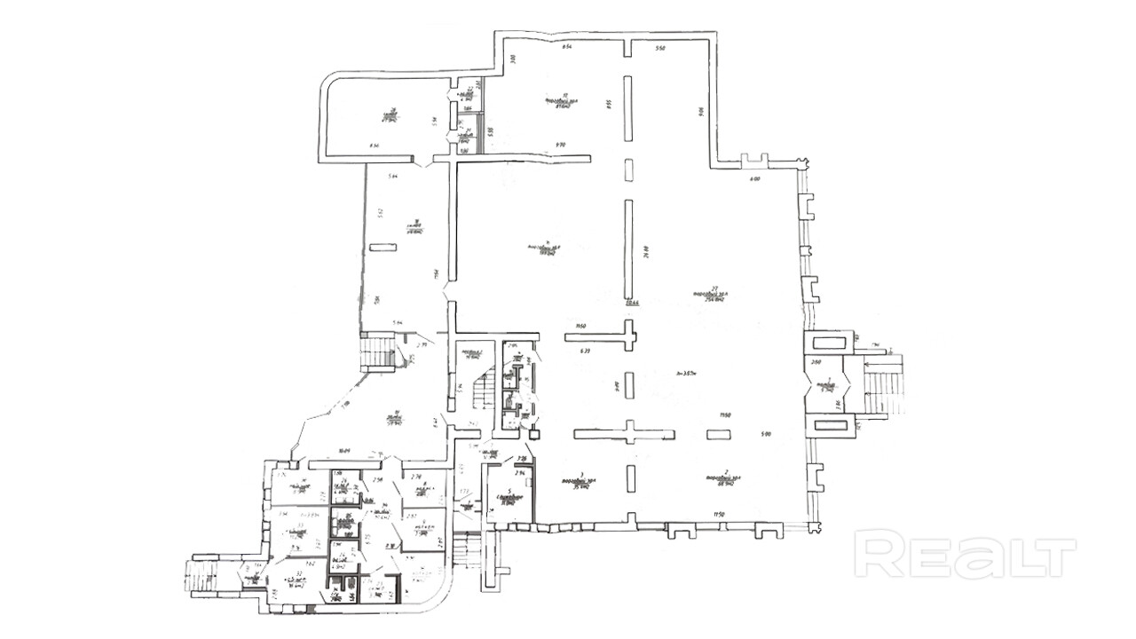
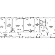
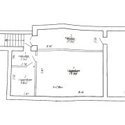
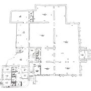
Продаётся отдельно стоящее здание торгового назначения
по адресу: Минск, 6-й Путепроводный переулок, 13А.
Площадь: 1 216,8 м2
Тип недвижимости: торговое здание, капитальное строение
Статус: объект с арендатором и стабильным доходом
Преимущества объекта:
Высокий покупательский трафик – здание расположено в сформированном жилом массиве, рядом плотная застройка многоэтажными домами и частный сектор;
Отдельно стоящее здание – полностью автономный объект, без долей, без ТСЖ;
Уже приносит доход – надёжный арендатор, долгосрочный договор;
Инфраструктура вокруг – школы, детсады, остановки, магистрали — локация удобна и для арендатора, и для покупателей.
Отличный выбор для инвестора, ищущего готовый объект с пассивным доходом;
Узнайте подробности и запишитесь на просмотр — объекты с такими параметрами продаются быстро!
Result Estate — ваш надёжный партнёр на рынке недвижимости.
20 лет опыта наших агентов по недвижимости — это ваш ключ к идеальной сделке: глубокое знание рынка, эксклюзивные предложения, юридическая безопасность и индивидуальный подход. Мы экономим ваше время, деньги и нервы, помогая купить, продать недвижимость быстро, выгодно и с уверенностью в результате!
Все актуальные предложения в одном месте — смотрите на нашем сайте.
ООО «Результативная недвижимость», лицензия выдана Минюстом 26.09.2023 № 02240470, УНП 193703497
Связываясь с нами по данному объекту, Вы даете свое согласие на сбор и обработку персональных данных автоматически.
Параметры объекта
- Тип объекта
Торговое помещение
- Площадь общая
1216.80 м²
- Этаж / этажность
1 / 2
- Ремонт
Нормальный
- Отопление
Есть
- Электроснабжение
Есть
- Вода
Есть
- Санузел
Есть
- Принадлежность объекта
Частная
- НДС
НДС нет (0%)
- Номер договора
53/3 от 19.06.2025
Оснащение
Оживленное место
Отдельный вход
Примечание
Местоположение
- Область
- Населенный пункт
- Район города
- Микрорайон
- Координаты
53.924277, 27.494853
