Купить торговое помещение, г. Минск, ул. Маяковского, 22/1
785 210 р.
- г. Минскул. Маяковского, 22/1
- Ковальская Слобода
- На карте
Тип
Площадь
Этаж
Описание
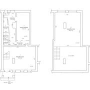
Продажа помещения в центре города общей площадью 189 кв.м. по адресу ул. Маяковского 22 к1.
Помещение, с отдельным входом общей площадью 189 кв.м. Назначение - "торговое".
Помещение представляет из себя двухэтажное изолированное помещение в арке жилого дома. Торговая площадь 1-го этажа – 60,0 кв.м, 2-го этажа – 68,0 кв.м. Имеются также склад 27,8 кв.м, кабинет 5,2 кв.м, санузел и кухня.
Удобные подъездные пути для подвоза товара ко второму входу (со двора) и удобная разгрузка товара в складское помещение, расположенное прямо у второго входа.
Отделка:
- напольное покрытие: плитка;
- отделка стен: окрашены;
- высота потолка h=5,2 метра
Инженерные системы и коммуникации:
- электрические роллеты на окнах
- центральное водоснабжение и отопление;
- доступ 24/7.
Парковка:
-
Парковка автомобилей расположена прямо у центрального входа в магазин.
Транспортное сообщение:
- Остановка 19-ти маршрутов троллейбусов, автобусов, маршруток в 35 метрах от магазина. Огромный пассажиропоток в районы Серебрянка, Чижовка, Лошица.
Result Estate — ваш надёжный партнёр на рынке недвижимости.
20 лет опыта наших агентов по недвижимости — это ваш ключ к идеальной сделке: глубокое знание рынка, эксклюзивные предложения, юридическая безопасность и индивидуальный подход. Мы экономим ваше время, деньги и нервы, помогая купить, продать недвижимость быстро, выгодно и с уверенностью в результате!
Все актуальные предложения в одном месте — смотрите на нашем сайте.
Опишите свои пожелания — и мы оперативно подберем для вас лучшие варианты!
ООО «Результативная недвижимость», лицензия выдана Минюстом 26.09.2023 № 02240/470, УНП 193703497
Связываясь с нами по данному объекту, Вы даете свое согласие на сбор и обработку персональных данных автоматически.
Параметры объекта
- Тип объекта
Торговое помещение
- Площадь общая
189 м²
- Этаж / этажность
1 / 12
- Отопление
Есть
- Электроснабжение
Есть
- Санузел
Есть
- Принадлежность объекта
Частная
- НДС
НДС нет (0%)
- Расположение
В жилом доме
- Номер договора
122/1 от 23.05.2024
Примечание
Местоположение
- Область
- Населенный пункт
- Улица
- Номер дома
22/1
- Район города
- Микрорайон
- Координаты
53.8774, 27.5677
