Купить склад+офис, г. Фаниполь, ул. Заводская, 39
от 2 273 120 р.
от 2 273 р.≈ от 800 $ за м²
Продажа
Следить за ценой
Склад+офис
Тип
1000 - 4000 м²
Площадь
1 из 1
Этаж
3 часа назадID 4095483
Параметры объекта
- Тип объекта
Склад+офис
- Площадь общая
1000 - 4000 м²
- Этаж / этажность
1 / 1
- Год постройки
2027
- Класс
A
- Раздельных помещений
1
- Материал стен
Панельный
- Высота потолков
4 м
- Ремонт
Хороший
- Отопление
Есть
- Электроснабжение
Есть
- Естественное освещение
Есть
- Вода
Есть
- Газ
Есть
- Санузел
Есть
- Количество телефонов
Больше пяти
- Парковка
Есть
- Принадлежность объекта
Частная
- НДС
НДС не включен
- Юридический адрес
Да
- Новостройка
Да
Оснащение
Видеонаблюдение
Охрана
Компьютерная сеть
Рампа
Отдельный вход
Продавец
отдел продаж
Контактное лицо
Примечание
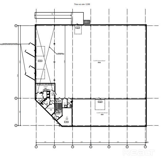
Организация застройщик приглашает принять участие в строительстве производственного помещения/склада от 1000м2. Промзона Фаниполь, территория СЭЗ Минск, ЖД ветка на участке застройки. Круглосуточная охрана, рампа, индивидуальный проект.
Местоположение
- Область
- Район
- Населенный пункт
- Улица
- Номер дома
39
- Направление
Брестское, 17 км от МКАД
- Координаты
53.748, 27.3545
