незавершенное капит. строение д. Заречанка ул. Садовая
179 374 р.
Тип
Участок
Общая
Жилая
Описание
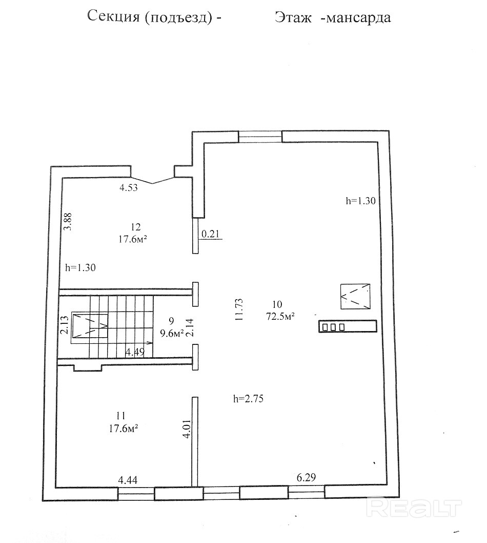
Продаётся незавершенное капитальное строение- жилой дом мансардного типа по ул. Садовой. Дом расположен в экологическом районе д. Заречанка, рядом лес и р. Неман. Участок площадью 0,2378 га находится в ПНВ. Дом общей площадью 319,7 м2, жилой 185 м2. Стены блок, кровля металлочерепица, окна ПВХ, деревянные перекрытия. По всему дому разведена электрика, канализационные трубы, а также трубы на горячую и
холодную воду. Подвал под всем домом, в котором предусмотрено помещение под котельную и прачечную. Газ подведен до угла дома, канализация септик. Более подробную информацию можно узнать по номеру. Поможем продать вашу недвижимость для покупки этой.
Возможно приобретение с привлечением кредита.
Параметры объекта
- Тип объекта
Дом
- Площадь участка
23 сотки
- Площадь общая
319.7 м²
- Площадь жилая
185 м²
- Статус земли
Пожизненно наследуемое владение
- Условия продажи
Чистая продажа
- Номер договора
319/6 от 10.06.2024
Примечание
Местоположение
- Область
- Район
- Населенный пункт
- Улица
- Координаты
53.728642, 23.750836
