3-комнатная квартира ул. Свердлова д.11
221 347 р.
3 380 р.≈ 1 220 $ за м²
Общая
Жилая
Этаж
Описание
Трехкомнатная квартира в центре Гродно
Улица Свердлова,11
2 этаж из 4
Год постройки – 1974
Кирпичный дом
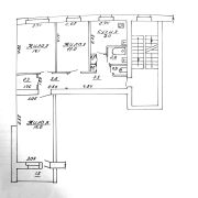
Трехкомнатная квартира удобной планировки в историческом центре Гродно. Общая площадь квартиры – 65,5 кв. м., жилая – 42 кв. м. Кухня – 7 кв. м., без газовой колонки. Высота потолков – 2,83 м. Есть лоджия. Раздельный санузел. Установлены окна ПВХ. Квартира в простом жилом состоянии, под ремонт. Материал стен позволяет выполнить перепланировку. Дом утеплен, оштукатурен и окрашен. Благоустроенная придомовая территория.
Отличное месторасположение. В шаговой доступности находятся Фарный костел, Гродненский областной драматический театр, Старый и Новый замок, Коложская церковь и многие другие уникальные достопримечательности, являющиеся визитной карточкой города и страны. Вокруг много торговых объектов, ресторанов, кафе. 5 минут пешком до автовокзала.
Отличное месторасположение позволяет сделать выбор как для собственного комфортного проживания, так и для выгодного коммерческого использования. Звоните и приходите на просмотр!
Параметры объекта
- Количество комнат
3
- Раздельных комнат
3
- Площадь общая
65.5 м²
- Площадь жилая
42 м²
- Год постройки
1974
- Этаж / этажность
2 / 4
- Балкон
Лоджия
- Собственность
Частная
- Условия продажи
Чистая продажа
- Номер договора
573/17 от 10.11.2025
Примечание
Местоположение
- Область
- Район
- Населенный пункт
- Улица
- Номер дома
11
- Район города
- Координаты
53.6754, 23.8366
