2-комнатная квартира г. Гродно, ул. Врублевского, 58 (м-н Форты)
166 182 р.
3 324 р.≈ 1 200 $ за м²
Общая
Жилая
Этаж
Описание
Просторная двухкомнатная квартира в г. Гродно, ул. Врублевского, 58 (м-н Форты). Дом отличается удачным расположением, удобные выезды, хорошая транспортная развязка.
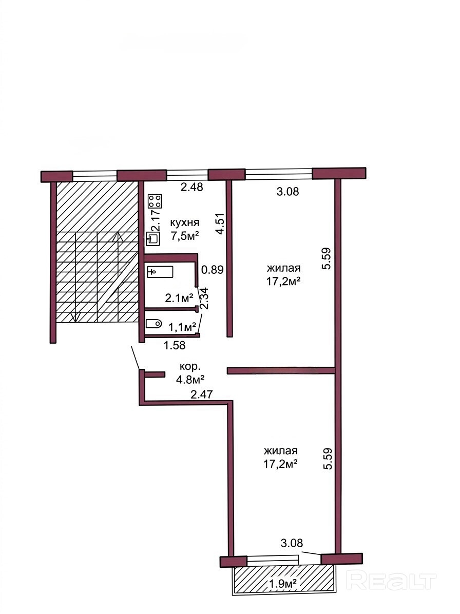
Развитая инфраструктура (магазины, школа, детский сад, недалеко ТЦ Олд Сити, поликлиника, мини-рынок). Рядом с домом парковка, детская площадка. 2 этаж 5-тиэтажного дома 1972 года постройки, материал стен – панель. Общая площадь 50 кв.м., жилая 34.4 кв.м., кухня 7.5 кв.м. Окна –ПВХ . Сан. узел раздельный, облицован плиткой. Материал полов – ламинат, плитка.
Кроме того, здесь Вы можете организовать собственный бизнес как сдача квартиры в аренду.
Бесплатное сопровождение для покупателя!!! Работаем с кредитом, жилищным балансом. Оперативный показ и юридическое сопровождение сделки гарантируем. Поможем продать вашу недвижимость для покупки этой.
За подробной информацией просьба обращаться по телефону и пишите Viber, Telegram. Возможен торг.
Параметры объекта
- Количество комнат
2
- Раздельных комнат
2
- Площадь общая
50 м²
- Площадь жилая
34.4 м²
- Год постройки
1972
- Этаж / этажность
2 / 5
- Балкон
Балкон
- Собственность
Частная
- Условия продажи
Чистая продажа
- Номер договора
261/17 от 29.03.2026
Примечание
Местоположение
- Область
- Район
- Населенный пункт
- Улица
- Номер дома
58
- Район города
- Координаты
53.7039, 23.8044
