капитальное строение с земельным участком аг. Лунно ул.Комсомольская д. 3
70 293 р.
Продажа
Следить за ценой
Магазин
Тип
186.70 м²
Площадь
13.01.2026ID 3711364
Описание
Продается капитальное строение с земельным участком а.г. Лунно ул.Комсомольская дом 3 расположенный на участке площадью 9,09 соток (Земельный участок на праве постоянного пользования).
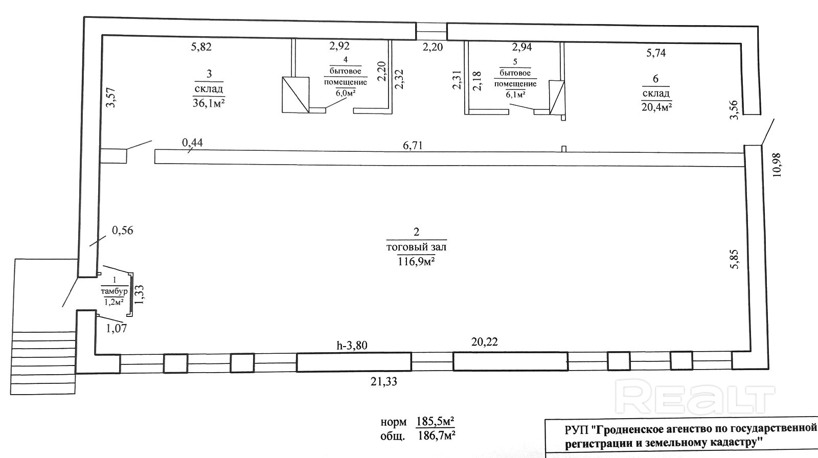
Кирпичное строение площадью 186.7 м2, нормируемая 185.5 м2 .
Коммуникации :новая электрика, отопление установлен твёрдотопливный котел.
Высота помещения 3.80 м. На участке есть такие строения как два гаража, два сарая.
Удобное месторасположение для бизнеса в центре Лунно.
Поможем продать Вашу недвижимость для покупки этого дома!
За подробной информацией просьба обращаться по телефону и пишите Viber, Telegram. Возможен торг!
Параметры объекта
- Тип объекта
Магазин
- Площадь участка
9 соток
- Площадь общая
186.70 м²
- Номер договора
03/17 от 09.04.2025
Примечание
Продается капитальное строение с земельным участком а.г. Лунно ул.Комсомольская дом 3 расположенный на участке площадью 9,09 соток (Земельный участок на праве постоянного пользования).
Местоположение
- Область
- Район
- Населенный пункт
- Улица
- Номер дома
3
- Сельсовет
Лунненский с/с
- Координаты
53.45419766, 24.261765131
