Закрытый жилой комплекс с приватной охраняемой территорией.
2 764 161 р.
Тип
Участок
Общая
Жилая
Описание
Закрытый жилой комплекс с приватной охраняемой территорией. Коттеджная застройка. Рядом природный заказник Лебяжий, водохранилище Дрозды, прямой выезд на проспект Победителей и МКАД, от центра города 10 минут на автомобиле. Лебяжий – один из самых экологически чистых районов столицы.
Шикарная квартира в таунхаусе с собственным участком площадью 0.1421га, которая располагается в престижном районе города, рядом с парковыми зонами, полностью сформированной инфраструктурой.
Статусные соседи и приятное окружение.
Дом построен из высококачественных материалов с соблюдением всех современных технологий строительства.
Премиальный ремонт с эксклюзивной мебелью и объектами интерьера, плитка и сантехника Италия и Англия.
Квартира оборудована уборочной системой (встроенной и разведённой по всем этажам). Коммуникации центральные . Полы- паркет и плитка. Электрическая сауна, купель.
Газовый двухконтурный котел Ferroli ,система фильтрации ,осмос и смягчение воды, центральный встроенный пылесос Duovac с выходом на каждом этаже.
Выполнен дорогой ремонт -
кухня Италия, выполнена на заказ, вся техника Miele,, 2 холодильника с морозильными камерами Libherr. Двери и лестница - массив дуба, выполнены по индивидуальному заказу.
Вся мебель изготовлена на заказ- Италия. Светильники и люстры итальянские ручной работы, сантехника Сквирел , Villeroy & Boch, Victoria&Albert и др..
Теплые полы. Действующий камин. Кондиционеры.
С кухни выход на террасу с обеденной зоной , ротанговая мебель, уличное подсобное помещение, винный погреб с отдельной морозильной камерой и системой хранения.
Закрытая территория с собственной парковкой. Ухоженый газон. Два парковочных места под навесом.
Выбирайте лучшее! Приезжайте! Не упускайте мечту! Чистая продажа.
Площадь указана по СНБ.
Лицензия: №02240/362 от 31.07.2018, Министерство юстиции РБ
Параметры объекта
- Тип объекта
Коттедж
- Площадь участка
14.21 соток
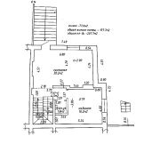
- Площадь общая
207.7 м²
- Площадь жилая
77.6 м²
- Уровней в доме
2
- Год постройки
2010
- Процент готовности
100
- Материал стен
Силикатные блоки
- Мебель
Есть
- Отопление
На газу
- Газ
Есть
- Канализация
Центральная
- Электроснабжение
Есть
- Вода
Центральный водопровод
- Статус земли
Частная собственность
- Условия продажи
Чистая продажа
- Номер договора
1595/1 от 03.11.2025
Инфраструктура
Ландшафтный дизайн
Хозпостройки
Элитный коттедж
Фаттория Плюс
Контактное лицо
Примечание
Местоположение
- Область
- Населенный пункт
- Улица
- Район города
- Микрорайон
- Координаты
53.937737, 27.464139
