Новый дом, качественно построенный! Интересный и продуманный проект дома!
387 204 р.
Тип
Участок
Общая
Жилая
Описание
Новый дом, качественно построенный! Интересный и продуманный проект дома!
Дом из газосиликатных блоков, утеплитель, оштукатурен. Перекрытия в доме железобетонные, на полу бетонная стяжка - есть подогрев полов.
Окна - стеклопакеты. - Сделано отопление - Электропроводка - Водоснабжение - Канализация Обустроены 2 котельные для отопления.
Дом готов для чистовой отделки!
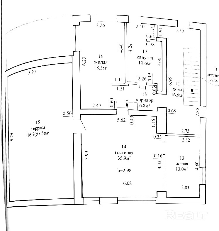
Дом спроектирован таким образом, что его можно разделить на две половины для независимого проживания!
Таким образом этот проект дома удобен как для проживания двух семей или для приема гостей с проживанием. У всех независимое отдельные жилые зоны, ванные комнаты и кухни с гостинной.
- В доме два отдельных входа
- Два отдельных въезда на парковки
- Двое откатных ворот.
Комнаты комфортного метража для обустройства детских, гостиных, спальных комнат.
На втором этаже с гостиной комнаты оборудован выход на просторную террасу с навесом.
На первом этаже есть возможность обустроить полноценную сауну!
Участок в частной собственности!
Хорошие подъездные пути.
Рядом расположен, в 5-ти минутах, микрорайон Сокол, в котором есть вся инфраструктура! Около поселка протекает река Волма, где есть пляжи для отдыха летом!
Удобно добираться, выезд на МКАД 2 - 24 км до МКАД, станция метро Могилевская!
Отличное место для загородной жизни в собственном доме!
Лицензия: №02240/362 от 31.07.2018, Министерство юстиции РБ
Параметры объекта
- Тип объекта
Дом
- Площадь участка
11.7 соток
- Площадь общая
266.5 м²
- Площадь жилая
175.5 м²
- Уровней в доме
2
- Год постройки
2025
- Материал стен
Силикатные блоки
- Отопление
На газу
- Газ
Есть
- Канализация
Местная
- Электроснабжение
Есть
- Вода
Центральный водопровод
- Статус земли
Частная собственность
- Условия продажи
Чистая продажа
- Номер договора
1631/1 от 12.11.2025
Инфраструктура
Водоем
Екатерина
Контактное лицо
Примечание
Местоположение
- Область
- Район
- Населенный пункт
- Улица
- Сельсовет
Драчковский с/с
- Направление
Могилёвское, 14.4 км от МКАД
- Координаты
53.891694, 27.903595
