Продается замечательный, уютный и просторный жилой дом в д. Денисовщина. 33 км от МКАД.
74 984 р.
Тип
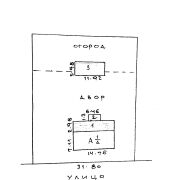
Участок
Общая
Жилая
Описание
Продается замечательный, уютный и просторный жилой дом в д. Денисовщина. 33 км от МКАД.
Вода введена в дом, своя скважина, глубина- 63м. Отопление печное. Стены: бревно обложено кирпичем. Окна ПВХ. Кровля – металлопрофиль. Канализация местная на два колодца. Подвал. Газ баллон.
Есть возможность сделать ремонт и воплотить в жизнь все свои мечты и фантазии.
Земельный участок ровный, просторный, 25 соток, в пожизненно наследуемом владении. Есть хозпостройки- сарай, туалет. Плодово- ягодные насаждения.
Хорошие подъездные пути, асфальт до дома. Из Минска от станции «Запад-3», через метро «Каменная горка», регулярно ходит автобус. Маршрутки. Рядом лес, озеро.
Прекрасное место для проживания и полноценного отдыха на природе после суеты и хлопот большого города.
Это одно из самых привлекательных предложений на рынке жилья.
Возможна покупка с привлечением кредитных средств от банков-партнеров. Окажем помощь при продаже вашей недвижимости для покупки данного объекта.
Звоните и приезжайте на осмотр! Вам понравится!
Лицензия: №02240/362 МЮ РБ, 31.07.2018
Параметры объекта
- Тип объекта
Дом
- Площадь участка
25 соток
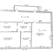
- Площадь общая
88.1 м²
- Площадь жилая
45.1 м²
- Уровней в доме
1
- Год постройки
1955
- Материал стен
Кирпичный
- Материал крыши
Металл
- Отопление
Печное
- Газ
Баллон
- Канализация
Местная
- Электроснабжение
Есть
- Вода
Скважина
- Статус земли
Частная собственность
- Условия продажи
Чистая продажа
- Номер договора
345/1 от 18.03.2026
Инфраструктура
Хозпостройки
Рядом лес
Водоем
Примечание
Местоположение
- Область
- Район
- Населенный пункт
- Улица
- Сельсовет
Путчинский с/с
- Направление
Раковское, 27.6 км от МКАД
- Координаты
53.858591, 26.991356
