Просторная 3-комнатная квартира улучшенной планировки в зелёном и спокойном районе.
336 876 р.
4 517 р.≈ 1 609 $ за м²
- г. Минскул. Тимошенко, 24/1
- Кунцевщина
- 10 минут
- На карте
Общая
Жилая
Кухня
Этаж
Описание
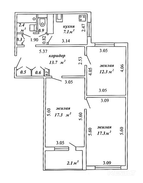
Просторная 3-комнатная квартира улучшенной планировки в зелёном и спокойном районе, всего в 9 минутах ходьбы от станции метро Кунцевщина. Квартира расположена на 2 этаже 9 этажного дома. Площадь по СНБ — 74,6 м2,общая площадь — 72,5 м2, кухня — 7,1 м2. Лоджия. Просторная гардеробная. Все комнаты изолированы. Санузел совмещен. Окна выходят на обе стороны дома, что обеспечивает хорошую вентиляцию и естественное освещение. Встроенная кухня с техникой. Современная плитка в санузле. Стеклопакеты. Инфраструктура: в шаговой доступности — 2 детских сада, школа, 2 поликлиники, центр технического и художественного творчества детей и молодежи "Зорка", ФОЦ с бассейном, "Западный" рынок, аптеки, магазины, почта, кафе, пекарни и другие объекты, необходимые для комфортной жизни. Для прогулок и активного отдыха — парк "Космос" с верёвочным парком и сквер Якубовского. Отличное транспортное сообщение: рядом остановки общественного транспорта, до метро — 9 минут пешком. Поможем продать вашу квартиру для покупки этой.
Лицензия: №02240/362 МЮ РБ, 31.07.2018
Параметры объекта
- Количество комнат
3
- Раздельных комнат
3
- Площадь общая
74.6 м²
- Площадь жилая
46.8 м²
- Площадь кухни
7.1 м²
- Год постройки
1981
- Этаж / этажность
2 / 9
- Тип дома
Панельный
- Балкон
Лоджия
- Ремонт
Хороший
- Высота потолков
2.5 м
- Санузел
Раздельный
- Собственность
Частная
- Условия продажи
Чистая продажа
- Номер договора
577/1 от 21.04.2025
Примечание
Местоположение
- Область
- Населенный пункт
- Улица
- Номер дома
24/1
- Район города
- Микрорайон
- Координаты
53.8999, 27.4628
