Купить 2-комнатную квартиру, г. Молодечно, ул. Игната Буйницкого, 53
149 619 р.
2 981 р.≈ 1 056 $ за м²
Чистая продажа
Следить за ценой
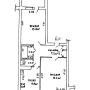
50.2 м²
Общая
30.1 м²
Жилая
9 м²
Кухня
1 из 5
Этаж
28.01.2026ID 4023249
Параметры объекта
- Количество комнат
2
- Раздельных комнат
2
- Площадь общая
50.2 м²
- Площадь жилая
30.1 м²
- Площадь кухни
9 м²
- Площадь по СНБ
52 м²
- Год постройки
1979
- Этаж / этажность
1 / 5
- Тип дома
Панельный
- Балкон
Лоджия
- Высота потолков
2.5 м
- Мебель
Есть
- Санузел
Раздельный
- Возможен торг
Да
- Собственность
Частная
- Условия продажи
Чистая продажа
- Вид из окон
Во двор, На улицу
Удобства
Телефонная сеть
Интернет
Продавец
Александр
Контактное лицо
Примечание
Тёплая, уютная 2-х комн. квартира 50,2 кв.м., с большой кухней 50,2/30,1/9,0 на 1 этаже пятиэтажного дома в центре г. Молодечно. Две изолированные комнаты, окна на обе стороны дома, лоджия, раздельный санузел, есть подвальное помещение с полками для хранения. Вся инфраструктура рядом: магазины (Маяк - 1 мин, Евроопт - 3 мин), центральная площадь - 3 мин, остановка общ. транспорта с маршрутками на Минск - 1 мин, парк Победы - 3 мин, рядом школа, аптеки, ж\д вокзал. В квартире никто не прописан.
Местоположение
- Область
- Район
- Населенный пункт
- Номер дома
53
- Направление
Молодечненское, 55.8 км от МКАД
- Координаты
54.3096, 26.8318
