Купить 3-комнатную квартиру, г. Молодечно, ул. Галины Хоревич, 2
66 341 р.
1 061 р.≈ 376 $ за м²
Общая
Жилая
Кухня
Этаж
Описание
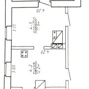
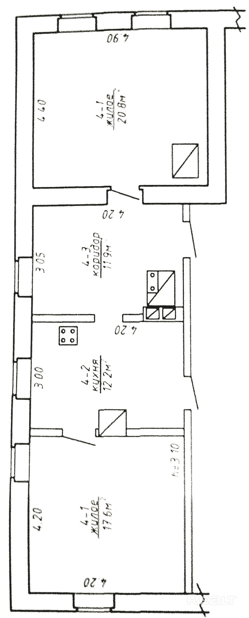
Продаем квартиру без удобств в историческом месте г. Молодечно на площади Старое Место рядом со Свято-Покровским храмом. Общая площадь – 62,5 кв.м. Жилая площадь – 38,4 кв.м. Площадь кухни – 12,2 кв.м. В квартире 3 рабочие печки (в т.ч. – 1 плита). Для поддержания хорошей температуры в квартире нет необходимости топить все три. Состояние квартиры – простое, жилое. Высота потолков 3 метра. Можно использовать квартиру как 3-х комнатную (см. техпаспорт, планировку). Планировка позволяет оборудовать санузел. Будем рады покупателю, который приложив финансовые усилия и труд оборудует эту квартиру газовым отоплением и санузлом. Газ в доме, газовое отопление есть в соседней квартире. Вода – колонка возле дома. Местоположение дома удачное, для комфортной жизни все рядом: торговая сеть, аптека, отделение ОАО «Беларусбанка», ресторан «Замок», парикмахерские, школа № 5 и детсад, остановка общественного транспорта с множеством маршрутов в разные направления города. ЧУП Агентство недвижимости «Дом для Вас». УНП 690324176. Лицензия 02240/109 от 06.05.2006г.. Страховой полис БР № 0003202 от 06.01.2026г. Договор на оказание риэлтерских услуг № 01/1 от 27.01.2026г.
Параметры объекта
- Количество комнат
3
- Раздельных комнат
2
- Площадь общая
62.5 м²
- Площадь жилая
38.4 м²
- Площадь кухни
12.2 м²
- Год постройки
1944
- Этаж / этажность
1 / 1
- Собственность
Частная
- Условия продажи
Обмен
- Номер договора
01/1 от 27.01.2026г. от 26.01.2026
Примечание
Местоположение
- Область
- Район
- Населенный пункт
- Улица
- Номер дома
2
- Направление
Молодечненское, 55.8 км от МКАД
- Координаты
54.319, 26.8691
