Однокомнатная квартира по ул.Майская, 8
208 777 р.
4 810 р.≈ 1 698 $ за м²
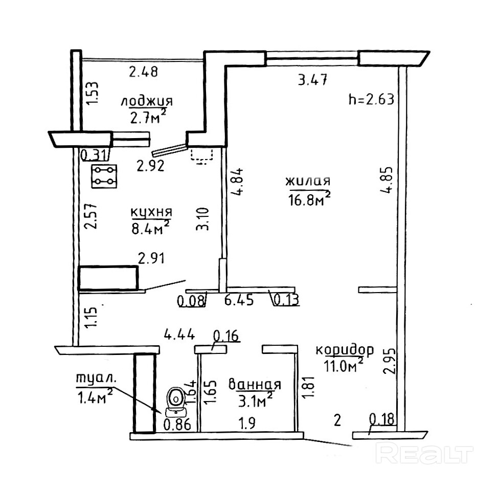
Общая
Жилая
Кухня
Этаж
Описание
Однокомнатная квартира по ул.Майская, 8
Просторная однокомнатная квартира. Кухня с выходом на лоджию. Оборудована гардеробная. При продаже остается кухонный гарнитур и встроенная мебель. Двухконтурный газовый котел обеспечивает автономную регулировку отопления и нет плановых отключений горячей воды.
На этаже есть кладовая.
Средний этаж. Очень ухоженный подъезд. Грузопассажирский лифт.
Дом расположен внутри квартала. Во дворе просторная оборудованная детская площадка.
Рядом 2 детских сада, амбулатория, кофейня. Несколько маленьких магазинов и Белмаркет.
До метро «Слуцкий гостинец» ходит несколько номеров автобусов и маршрутное такси. На авто до Минска 10 мин.
Чистая продажа. Ключи в день сделки.
Общая площадь указана по СНБ.
Лицензия: №02240/362 МЮ РБ, 31.07.2018
Параметры объекта
- Количество комнат
1
- Площадь общая
43.4 м²
- Площадь жилая
16.8 м²
- Площадь кухни
8.4 м²
- Год постройки
2016
- Этаж / этажность
4 / 9
- Тип дома
Панельный
- Балкон
Лоджия
- Ремонт
Хороший
- Высота потолков
2.7 м
- Санузел
Раздельный
- Собственность
Частная
- Условия продажи
Чистая продажа
- Номер договора
136/1 от 09.02.2026
Татьяна Балакшина
Риэлтер
Примечание
Местоположение
- Область
- Район
- Населенный пункт
- Улица
- Номер дома
8
- Сельсовет
Сеницкий с/с
- Направление
Слуцкое, 7 км от МКАД
- Координаты
53.7971, 27.4519
