Продается трехкомнатная квартира с очень удобной планировкой в благоустроенном Московском районе.
339 936 р.
5 181 р.≈ 1 829 $ за м²
Общая
Жилая
Кухня
Этаж
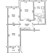
Описание
Продается трехкомнатная квартира с очень удобной планировкой в благоустроенном Московском районе.
Просторная кухня, светлые большие комнаты, раздельный санузел, застекленная лоджия. Тамбур на 2 квартиры.Чистый ухоженный подъезд, новый лифт.
Во дворе вы всегда найдете парковочное место для своего автомобиля.
Отличное транспортное сообщение, остановки рядом, 10 минут до метро Малиновка на транспорте
Район, в котором находится квартира, богат инфраструктурой: В шаговой доступности расположены: несколько детских садов и школ, гимназия и лицей, магазины, супермаркеты, рынки, банки, детская и взрослая поликлиники, спортивный комплекс «Максима Мирного», бассейн «Нептун» и другие объекты.
Удобный выезд на МКАД и на проспект Дзержинского!
!!!Квартира готова к проживанию.
Площадь указана по СНБ.
Прекрасный вариант как для жизни, так и для инвестиций!
Лицензия: №02240/362 МЮ РБ, 31.07.2018
Параметры объекта
- Количество комнат
3
- Раздельных комнат
3
- Площадь общая
65.6 м²
- Площадь жилая
43.7 м²
- Площадь кухни
7.1 м²
- Год постройки
1992
- Этаж / этажность
9 / 12
- Тип дома
Панельный
- Балкон
Лоджия
- Ремонт
Хороший
- Высота потолков
2.5 м
- Санузел
Раздельный
- Стоянка автомобиля
Есть
- Собственность
Частная
- Условия продажи
Чистая продажа
- Номер договора
196/1 от 24.02.2026
Фаттория Плюс
Контактное лицо
Примечание
Местоположение
- Область
- Населенный пункт
- Улица
- Номер дома
94
- Район города
- Микрорайон
- Координаты
53.8581, 27.4345
