Успейте забронировать и оформить! Осталась единственная 1-комнатная квартира в новостройке!
134 142 р.
3 288 р.≈ 1 161 $ за м²
Общая
Жилая
Кухня
Этаж
Описание
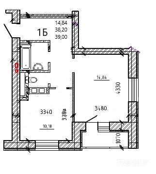
1-комнатная квартира №20 в кирпичном доме (кухня 10 м2)
Продажа от застройщика. Никаких переплат и «сюрпризов» от предыдущих владельцев.
Характеристики:
· Общая площадь: 40,8 м2 (идеальный вариант для семьи или пары).
· Кухня: Просторная, 10,10 м2 — хватит места и для гарнитура, и для обеденной зоны.
· Дом: Красный керамический кирпич (классическая надежность, высокая теплоизоляция, экологичность).
Преимущества объекта:
1. Качество стен: Кирпич дает усадку минимально, не требует долгого выжидания перед ремонтом и отлично держит тепло.
2. Функциональность: Удобная планировка без лишних «метров», за которые нужно платить.
3. Новостройка: новые коммуникации, возможность сделать ремонт «под себя».
ООО «ЭТАЖИ юнайтед»
УНП: 193673318
Договор 412/1 от 02.03.2026
Лицензия на оказание риэлтерских услуг №02240/460 МЮ РБ от 03.04.2023
Параметры объекта
- Количество комнат
1
- Площадь общая
40.8 м²
- Площадь жилая
14.9 м²
- Площадь кухни
10.1 м²
- Год постройки
2026
- Этаж / этажность
5 / 9
- Тип дома
Кирпичный
- Балкон
Лоджия
- Ремонт
Без отделки
- Высота потолков
2.5 м
- Санузел
Раздельный
- Собственность
Частная
- Условия продажи
Чистая продажа
- Номер договора
412/1 от 01.03.2026
Сергей Шилов
Агент по недвижимости
Примечание
Местоположение
- Область
- Район
- Населенный пункт
- Улица
- Номер дома
39/В
- Район города
Прочие
- Микрорайон
6 м-н
- Направление
Молодечненское, 55.8 км от МКАД
- Координаты
54.2927, 26.8723
