Квартира вашей мечты! Продажа от застройщика
210 121 р.
3 258 р.≈ 1 150 $ за м²
Общая
Жилая
Кухня
Этаж
Описание
Представьте: вы просыпаетесь в своей спальне, а ребенок уже возится в своей комнате. Никто никому не мешает. Это не магия, это грамотная планировка.
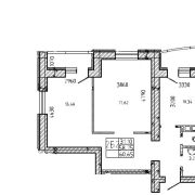
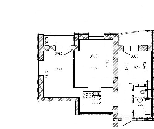
В нашем новом доме из красного кирпича вас ждет квартира №30 — 64,5 квадратов чистого уюта.
Почему она вам понравится с первого взгляда?
· Кухня 10,34 м2: Мечта хозяйки. Здесь вы сможете проводить кулинарные эксперименты, не толкаясь локтями. Здесь поместится и большой холодильник, и посудомойка, и даже мягкий уголок для кофе по утрам.
· Личное пространство: Две отдельные комнаты — это решение вечных споров «кто будет смотреть телевизор». Это возможность уединиться с книгой или спокойно работать из дома.
· Кирпич — это любовь: Мы выбрали красный керамический кирпич не случайно. Он «дышит», создавая идеальный микроклимат. В такой квартире легко дышится и крепко спится.
Квадратные метры бывают разными. Эти — наполненные светом и покоем.
ООО «ЭТАЖИ юнайтед»
УНП: 193673318
Договор 412/1 от 02.03.2026
Лицензия на оказание риэлтерских услуг №02240/460 МЮ РБ от 03.04.2023
Параметры объекта
- Количество комнат
2
- Раздельных комнат
2
- Площадь общая
64.5 м²
- Площадь жилая
31.7 м²
- Площадь кухни
10.34 м²
- Год постройки
2026
- Этаж / этажность
8 / 9
- Тип дома
Кирпичный
- Балкон
Лоджия
- Ремонт
Без отделки
- Высота потолков
2.5 м
- Санузел
Раздельный
- Собственность
Частная
- Условия продажи
Чистая продажа
- Номер договора
412/1 от 01.03.2026
Сергей Шилов
Агент по недвижимости
Примечание
Местоположение
- Область
- Район
- Населенный пункт
- Улица
- Номер дома
39/В
- Район города
Прочие
- Микрорайон
6 м-н
- Направление
Молодечненское, 55.8 км от МКАД
- Координаты
54.2927, 26.8723
