Видовая квартира в новостройке по ул.Восточной д.166!
336 949 р.
6 059 р.≈ 2 140 $ за м²
Общая
Жилая
Кухня
Этаж
Описание
Лучшая планировка в новостройке позволяет создать несколько дизайнерских решений в назначении комнат !
Прекрасные виды из окна наполняют квартиру светом и уютом.
Жилой дом в монолитном каркасе с плоскими перекрытиями. Наружные стены надземной части - из блоков ячеистого бетона со сплошным утеплением минераловатными плитами; внутренние стены - монолитные железобетонные; перегородки – из кирпича керамического.
В объекте предусмотрено устройство 92 парковочных машино-мест, а также велогараж на 15 мест и 9 велопарковок.
На 1 этаже запроектированы: 5 административных помещений, помещение товарищества собственников, помещения входных групп в секции жилой части, инвентарные, колясочные, кладовые уборочного инвентаря.
Оконные (балконные) блоки: ПВХ профиль, заполнение двухкамерные стеклопакеты.
Дверные блоки (входные) – металлические.
Элементы остекления лоджий: профиль ПВХ, заполнение многослойным безопасным стеклом на высоту не менее 1,1 м от пола.
Установка сантехнических приборов – унитаз.
Внутренняя отделка: полы – стяжка, стены и перегородки – улучшенная штукатурка, потолок без отделки.
Благоустройство территории: устройство тротуаров для пешеходов с покрытием из мелкоразмерных бетонных плит, проезды и парковки с покрытием из цементнобетонной мелкоразмерной плитки на бетонном основании, расстановка малых архитектурных форм (скамейки, урны) и озеленение прилегающей территории, ограждение детской площадки, имеющей игровое и спортивное оборудование, движение по которой осуществляется без выхода на проезжую часть.
Идеальный вариант первой квартиры в одном из лучших райнов города!
Общество с ограниченной ответственностью "ЮГ Хоум"
УНП:193511758
Лицензия :02240/412 от 19.03.2021
Министерство Юстиции РБ
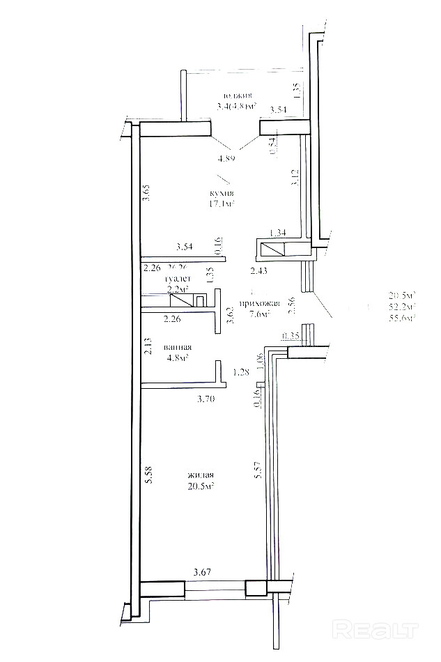
Параметры объекта
- Количество комнат
2
- Раздельных комнат
1
- Площадь общая
55.6 м²
- Площадь жилая
20.5 м²
- Площадь кухни
17.1 м²
- Площадь балконов
3.4 м²
- Год постройки
2025
- Этаж / этажность
8 / 10
- Балкон
Лоджия
- Ремонт
Без отделки
- Высота потолков
2.7 м
- Санузел
Раздельный
- Стоянка автомобиля
Есть
- Возможен торг
Да
- Собственность
Частная
- Условия продажи
Чистая продажа
- Номер договора
87 от 16.03.2026
- Вид из окон
Во двор, На улицу
Примечание
Местоположение
- Область
- Населенный пункт
- Улица
- Номер дома
166
- Район города
- Микрорайон
- Координаты
53.9469, 27.605
