Квартира в Сухарево, 5 этаж 9ти этажного дома 2001 года постройки
304 386 р.
5 711 р.≈ 2 017 $ за м²
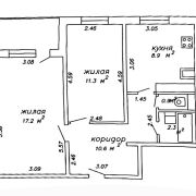
Общая
Жилая
Кухня
Этаж
Описание
Квартира в Сухарево, 5 этаж 9ти этажного дома 2001 года постройки
Квартира в отличном состоянии, светлая, просторная.
Вместительная кухня почти 9 кв м со встроенной бытовой техникой и мебелью.
Новым собственникам остается, в том числе, холодильник и посудомоечная машина.
Гостиная украшена стильной гипсовой лепниной. Стены отделаны обоями под покраску с возможностью выбора цвета краски. В гостиной и детской на полу ламинат.
В коридоре оригинальные виниловые обои под венецианскую штукатурку.
Все межкомнатные двери новые.
С/у раздельный, плитка. В туалете имеется гигиенический душ.
Окна - деревянные стеклопакеты. Кондиционер.
Балкон застеклен и отделан.
Входная дверь металлическая, домофон. Дверь на площадке в тамбур также металлическая, новая. Тамбур содержится в идеальном порядке, свежий ремонт.
Во дворе всегда есть место, где парковать машину, а также детская площадка. Чистый подъезд, хорошие, дружные соседи.
Быстрый выезд на МКАД
Общая площадь указана по СНБ.
Лицензия: №02240/362 МЮ РБ, 31.07.2018
Параметры объекта
- Количество комнат
2
- Раздельных комнат
2
- Площадь общая
53.3 м²
- Площадь жилая
28.5 м²
- Площадь кухни
8.9 м²
- Год постройки
2001
- Этаж / этажность
5 / 9
- Тип дома
Панельный
- Балкон
Лоджия
- Ремонт
Хороший
- Высота потолков
2.5 м
- Санузел
Раздельный
- Стоянка автомобиля
Есть
- Собственность
Частная
- Условия продажи
Чистая продажа
- Номер договора
352/1 от 19.03.2026
Елена Бутурля
Агент по недвижимости
Примечание
Местоположение
- Область
- Населенный пункт
- Улица
- Номер дома
78
- Район города
- Микрорайон
- Координаты
53.8821, 27.4259
