Продам евродвушку в самом современном жилом пространстве в ЖК Зеленая гавань!
419 971 р.
7 058 р.≈ 2 504 $ за м²
Общая
Жилая
Этаж
Описание
Продам евродвушку в самом современном жилом пространстве в
ЖК Зеленая гавань!
Наши преимущества:
+ само расположение жилого комплекса позволяет качественно изменить уровень собственной жизни, Вы живете в городе, окруженном самой природой. Тишина, велодорожки, безопасная среда для детей, детские площадки и сосновый лес в пешей доступности.
+ собственное парковочное место в собственности на отдельно стоящем паркинге всего в 3 минутах ходьбы от дома.
+ огромная личная терраса 34,2 метра с отличным видом и безграничными возможностями.
+ грамотная планировка, которая позволит воплотить ваши грандиозные планы и дизайнерские решения.
+ 2,9 м отдельно выделенная кладовая
+ колясочная на 0 этаже и помещение для ухода за вашими питомцами.
Звоните! Организую просмотр в удобное для вас время и помогу продать любую недвижимость для покупает этой!
Общая площадь указана по СНБ.
Лицензия: №02240/362 МЮ РБ, 31.07.2018
Параметры объекта
- Количество комнат
2
- Раздельных комнат
1
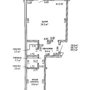
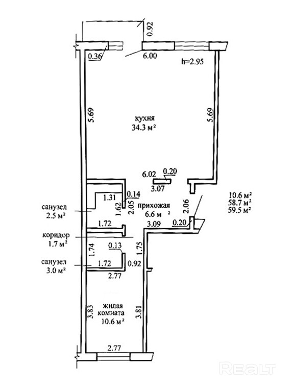
- Площадь общая
59.5 м²
- Площадь жилая
10.6 м²
- Год постройки
2026
- Этаж / этажность
7 / 8
- Тип дома
Панельный
- Балкон
Балкон
- Ремонт
Без отделки
- Высота потолков
3 м
- Санузел
2 и более
- Собственность
Частная
- Условия продажи
Чистая продажа
- Номер договора
315/1 от 15.03.2026
Удобства
Лифт
Надежда Баубель
Агент по недвижимости
Примечание
Местоположение
- Область
- Район
- Населенный пункт
- Улица
- Номер дома
12
- Сельсовет
Колодищанский с/с
- Направление
Московское, 8.2 км от МКАД
- Координаты
53.8934, 27.7484
