Продается квартира в блокированном жилом доме(таунхаус) в Минске (пер. Снежный)
685 000 р.
3 135 р.≈ 1 148 $ за м²
- г. Минскпер. Снежный, 6
- Молодежная
- 10 минут
- На карте
Общая
Жилая
Этаж
Описание
Уникальное предложение в тихом центре Минска! Просторный дом в блокированной застройке (таунхаус) — идеальное сочетание загородного комфорта и городской инфраструктуры.
Ключевые характеристики:
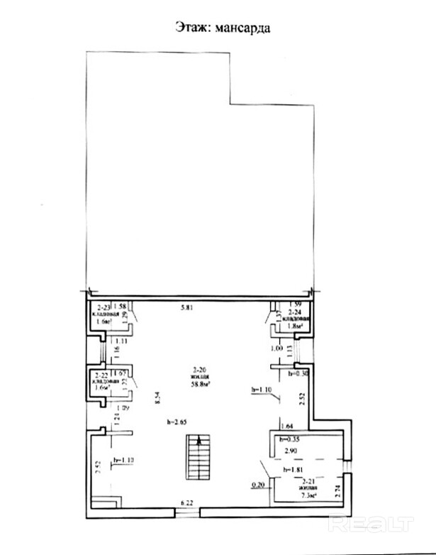
· Общая площадь: 218,5 м2 (реальный масштаб для большой семьи).
· Комнат: 9 (хватит всем: спальни, гостиная, кабинеты, детские).
· Кухонь: 2! Это позволяет организовать две независимые зоны проживания (например, для родителей и взрослых детей или для сдачи части дома).
Главный бонус: Отдельно стоящее здание БАНИ на участке и зона барбекю
Этажность: 3 этажа.
Была произведена реконструкция дома в 2024 году.
Почему это выгодно?
Локация: Переулок Снежный, Минск. Вся городская инфраструктура рядом, но при этом тишина и свой уголок. Отличное транспортное сообщение, остановка общественного транспорта около дома, метро в шаговой доступности, 7 минут спокойной ходьбы. Функциональность: Две кухни и 9 комнат — это возможность разделить пространство на две квартиры или сделать огромный дом для нескольких поколений.
Отдых без выезда: Своя баня — круглогодичный релакс.
Общая площадь указана по СНБ.
Лицензия: №02240/362 МЮ РБ, 31.07.2018
Параметры объекта
- Количество комнат
5
- Раздельных комнат
5
- Площадь общая
218.5 м²
- Площадь жилая
157.1 м²
- Год постройки
1955
- Год капитального ремонта
2024
- Этаж / этажность
2 / 3
- Число уровней
3
- Тип дома
Кирпичный
- Ремонт
Хороший
- Высота потолков
2.7 м
- Мебель
Есть
- Санузел
2 и более
- Собственность
Частная
- Условия продажи
Чистая продажа
- Номер договора
414/1 от 02.04.2026
Примечание
Местоположение
- Область
- Населенный пункт
- Улица
- Номер дома
6
- Район города
- Микрорайон
- Координаты
53.900995, 27.514328
