Купить 3-комнатную квартиру, г. Минск, ул. Восточная, 28/2
266 424 р.
4 844 р.≈ 1 718 $ за м²
Чистая продажа
Следить за ценой
- г. Минскул. Восточная, 28/2
- Академия наук
- На карте
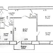
55 м²
Общая
43 м²
Жилая
5 из 5
Этаж
11 часов назадID 4096513
Параметры объекта
- Количество комнат
3
- Раздельных комнат
2
- Площадь общая
55 м²
- Площадь жилая
43 м²
- Год постройки
1971
- Этаж / этажность
5 / 5
- Балкон
Балкон
- Ремонт
Хороший
- Собственность
Частная
- Условия продажи
Чистая продажа
Продавец
Egor
Контактное лицо
Примечание
Из агентств прошу не звонить. Приятная "брежневка" в спокойном квартале. Дом кирпич, утеплён снаружи. Коммуникации заменены, электрика приведена в порядок. Кухня 7,4м2. Раздельный сан.узел. Все внутренние стены-это перегородки. Окна на детские сады. Гимназия в соседнем здании. 6 минут до метро "Пл. Я.Коласа" на трамвае, метро "Площадь Победы" 10 минут, остановка 200метров от подъезда
Местоположение
Академия наук12 минут
Площадь Якуба Коласа6 минут
- Область
- Населенный пункт
- Улица
- Номер дома
28/2
- Район города
- Микрорайон
- Координаты
53.9292, 27.5933
