Одна из самых красивых квартир в Минск Мире, улица Николы Теслы дом 10!
558 365 р.
8 371 р.≈ 2 970 $ за м²
- г. Минскул. Николы Теслы, 10
- Аэродромная (2024)
- На карте
Общая
Жилая
Этаж
Описание
Одна из самых красивых квартир в Минск Мире, улица Николы Теслы дом 10!
Квартира солнечная и светлая, расположена на 18-ом этаже, дизайнерское решение воплощено в жизнь с соблюдением всех норм и подбором качественных материалов, узаконенная перепланировка, что важно!
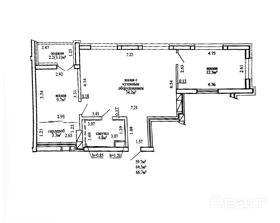
Две отдельные просторные спальни и кухня гостиная с возможностью периодически делать перестановку для того, чтоб привносить в жизнь что-то новенькое!
Общая площадь квартиры по СНБ 66,7 метра квадратных, жилая- 59,7.
Прекрасные соседи, консьерж, достаточно парковочных мест вдоль дома и у дороги!
Продаём чистой продажей, покажем в любое время, поможем продать вашу квартиру для покупки этой!
Лицензия: №02240/362 МЮ РБ, 31.07.2018
Параметры объекта
- Количество комнат
3
- Раздельных комнат
2
- Площадь общая
66.7 м²
- Площадь жилая
59.7 м²
- Год постройки
2022
- Этаж / этажность
18 / 19
- Тип дома
Каркасно-блочный
- Балкон
Лоджия
- Ремонт
Отличный
- Высота потолков
2.7 м
- Санузел
Совмещенный
- Стоянка автомобиля
Есть
- Собственность
Частная
- Условия продажи
Чистая продажа
- Номер договора
288/1 от 10.03.2026
Виктория Адамович
Агент по недвижимости
Примечание
Местоположение
- Область
- Населенный пункт
- Улица
- Номер дома
10
- Район города
- Микрорайон
- Координаты
53.8703, 27.5395
